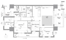
間取り
この物件の詳細情報に戻る関連する他の物件も見てみる
特徴
- 子どもと暮らす(107)
- 対面キッチン(100)
- I型キッチン(100)
- ウォークインクローゼット(89)
- モデルルーム公開中(74)
- 食器洗い乾燥機(食洗機)(72)
- 浴室暖房換気乾燥機(71)
- 駐車場100%以上(70)
- 二重床/二重天井(70)
- ペット可(67)
- 可変式間仕切り(66)
- 宅配ボックス(64)
- 玄関からリビングが見えない間取り(59)
- ハンズフリーキー(57)
- エコマンション(51)
- 浴室に窓(46)
- 即入居可能(33)
- 床暖房(28)
- アルコーブ(22)
- ゴミ回収サービス(19)
- 東向き(18)
- 和室付き(13)
- トランクルーム(12)
- アイランドキッチン(11)
地域
間取り
価格帯
不動産会社

