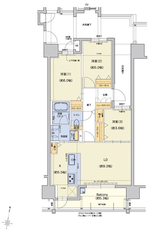
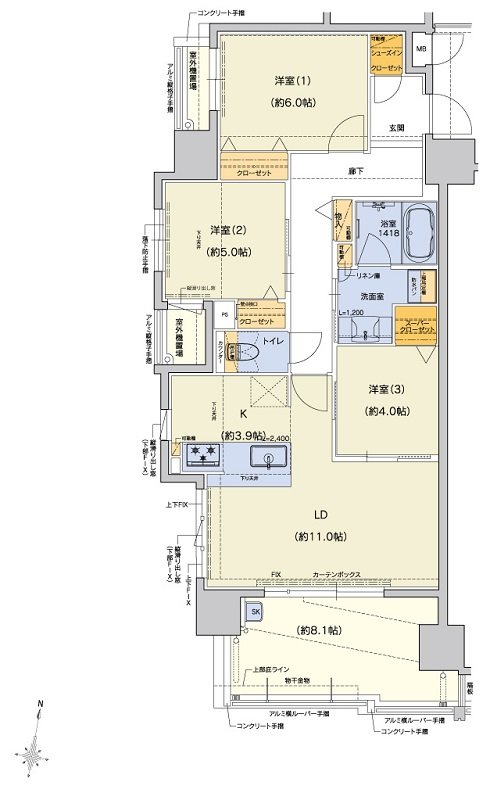
間取り
この物件の詳細情報に戻る関連する他の物件も見てみる
特徴
- 子どもと暮らす(107)
- 対面キッチン(100)
- I型キッチン(100)
- 平置き駐車場(81)
- モデルルーム公開中(74)
- 食器洗い乾燥機(食洗機)(72)
- 浴室暖房換気乾燥機(71)
- 駐車場100%以上(70)
- 二重床/二重天井(70)
- ペット可(67)
- 可変式間仕切り(66)
- 宅配ボックス(64)
- 玄関からリビングが見えない間取り(59)
- ハンズフリーキー(57)
- スロップシンク(57)
- 出入口が2か所以上あるキッチン(52)
- 複層ガラス(ペアガラス)(51)
- シューズインクローゼット(43)
- ペット共用施設(40)
- 南向き(37)
- 即入居可能(33)
- ラウンジ(31)
- フラット35(26)
- バリアフリー(16)
地域
間取り
価格帯
不動産会社
駅
沿線

