- 価格
-
2970万円~3770万円
月々の支払い額を見る
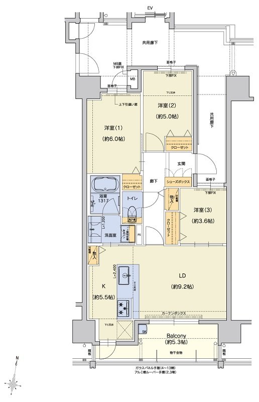
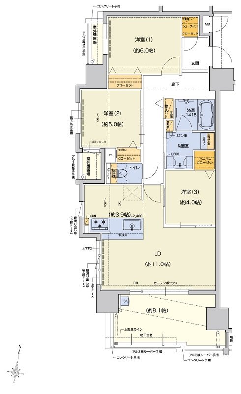
- 専有面積
-
65.01㎡
- 間取り
-
3LDK
間取りを見る(1件)
- 販売スケジュール
-
先着順申込み受付中

