- 価格
-
9900万円~2億8000万円(予定)
月々の支払い額を見る
- 専有面積
-
38.86㎡~80.35㎡
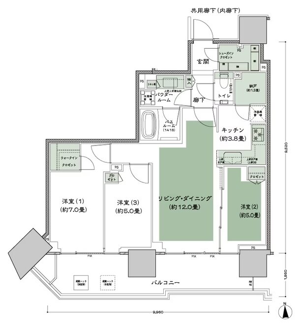
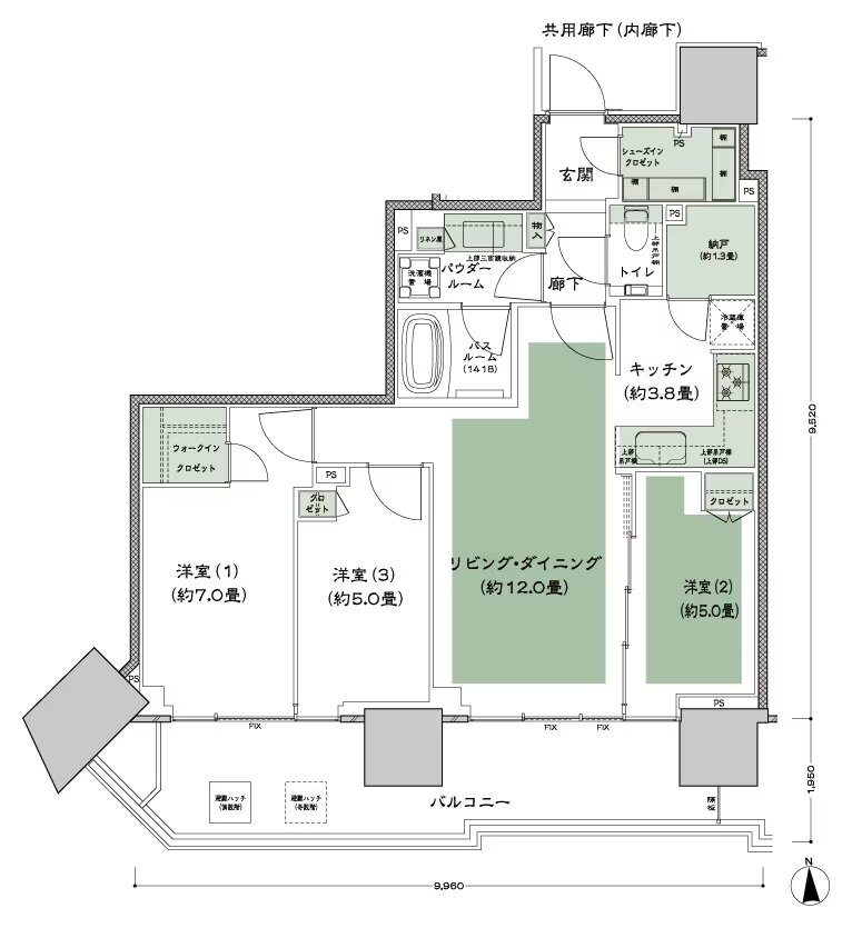
- 間取り
-
1LDK~3LDK
間取りを見る(4件)
- 販売スケジュール
-
2026年6月下旬販売開始予定

