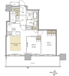
間取り
この物件の詳細情報に戻る2LDK掲載5件
3LDK掲載5件
●図面と現況が異なる場合は、現況を優先します。
●方位記号は若干誤差があります。正確な方位については設計図書でご確認ください。
関連する他の物件も見てみる
特徴
- 子どもと暮らす(34)
- 対面キッチン(33)
- ウォークインクローゼット(31)
- I型キッチン(31)
- 一人暮らし・二人暮らし向け(30)
- 玄関からリビングが見えない間取り(29)
- モデルルーム公開中(28)
- 可変式間仕切り(28)
- 床暖房(27)
- シューズインクローゼット(24)
- ペット可(21)
- 食器洗い乾燥機(食洗機)(21)
- 2面バルコニー(19)
- 浴室暖房換気乾燥機(18)
- 西向き(17)
- ハンズフリーキー(15)
- ラウンジ(15)
- 即入居可能(15)
- 南向き(14)
- エコマンション(14)
- 出入口が2か所以上あるキッチン(12)
- 大規模マンション(11)
- ペット共用施設(10)
- 東向き(9)
- 広いリビング(6)
- ディスポーザー(5)
- オンラインで相談・見学・商談可能(5)
- 高級マンション・ハイグレードマンション(5)
- タワーマンション・高層マンション(4)
- ペニンシュラキッチン(2)
地域
間取り
価格帯
不動産会社
駅
沿線

