- 価格
-
5480万円~1億1200万円
月々の支払い額を見る
- 専有面積
-
55.44㎡~94.09㎡
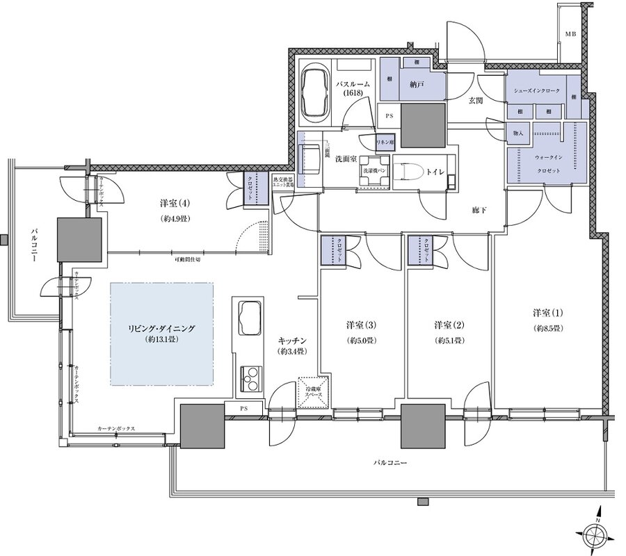
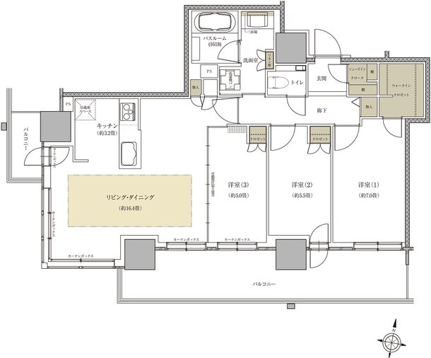
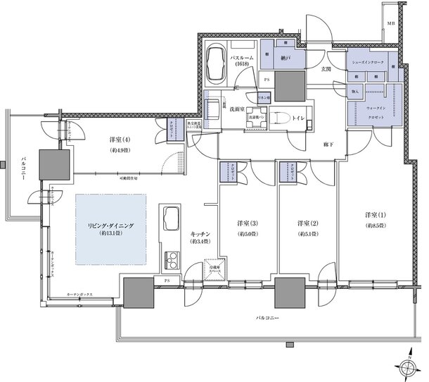
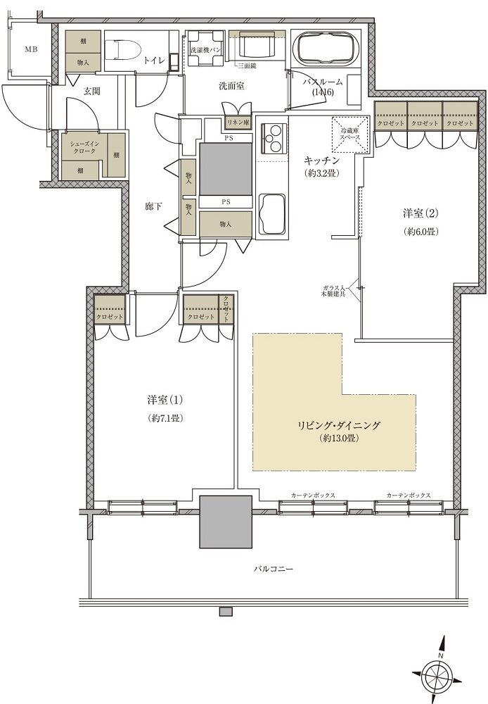
- 間取り
-
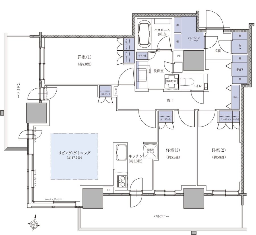
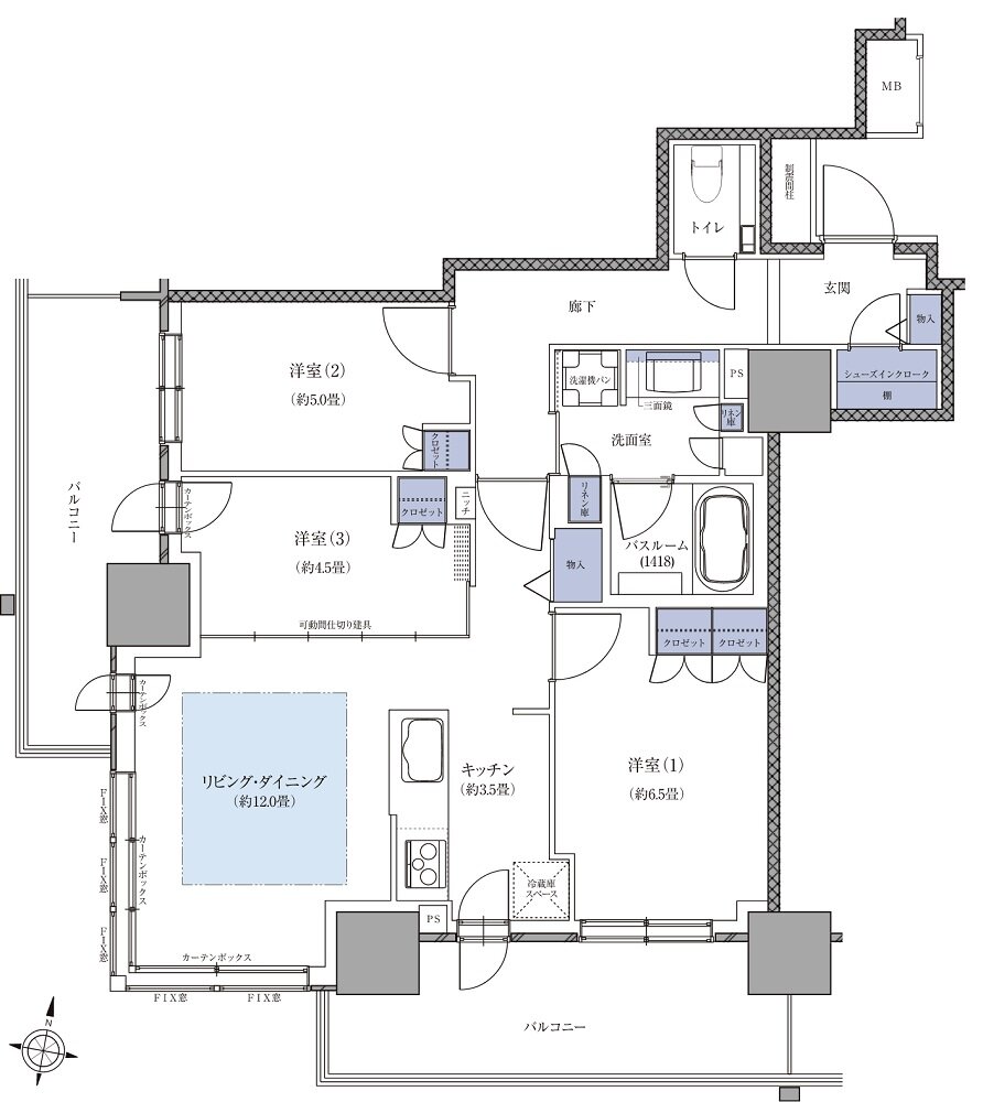
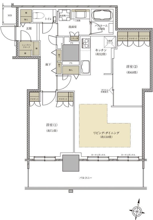
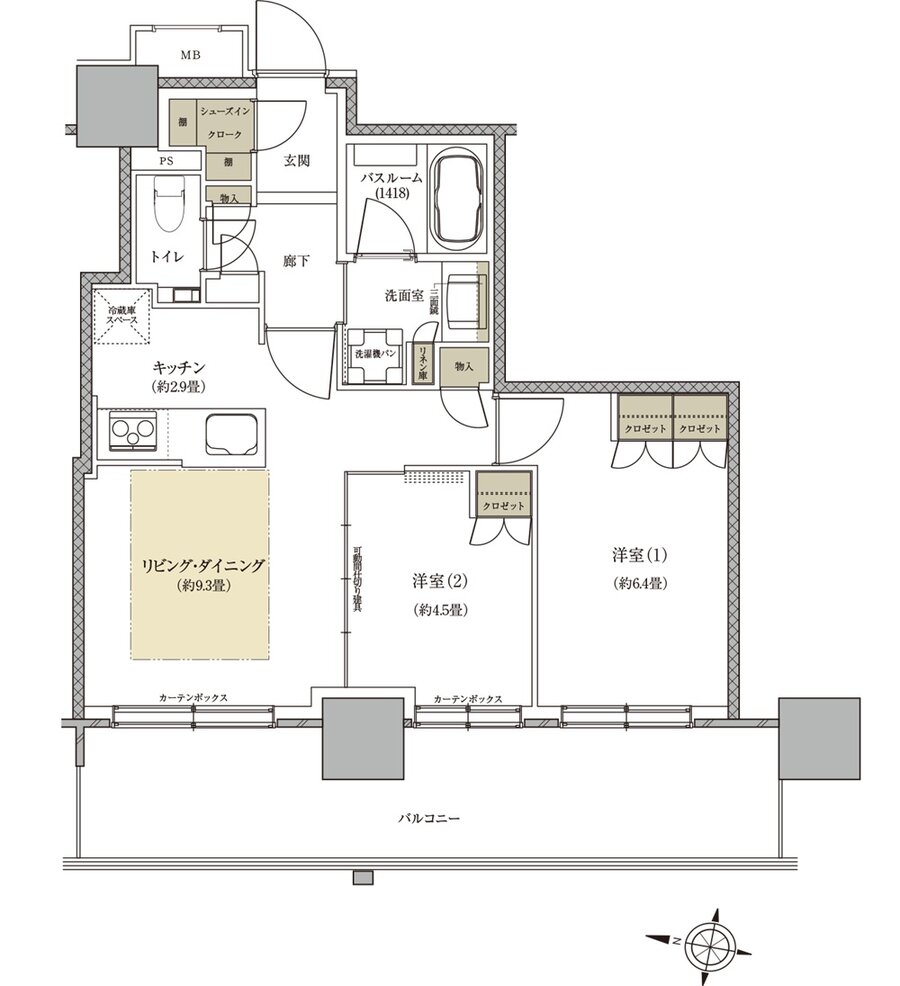
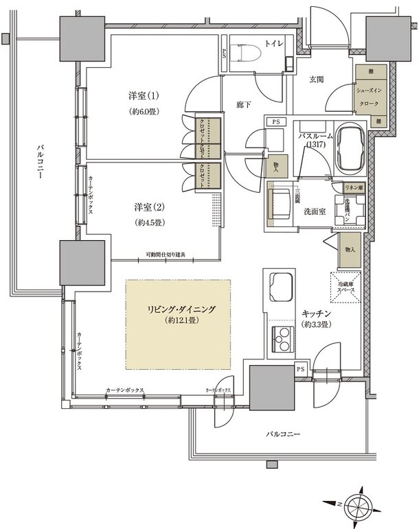
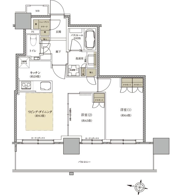
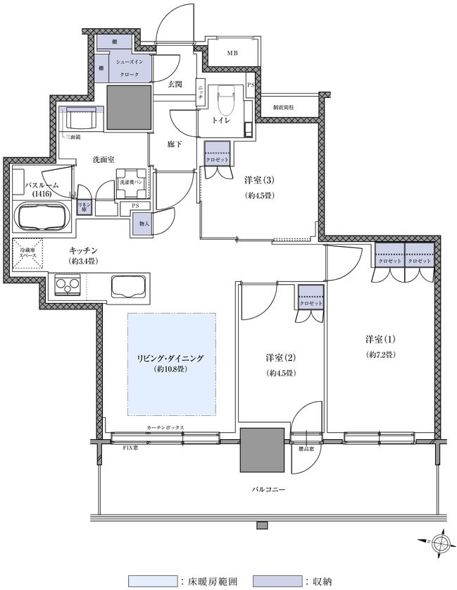
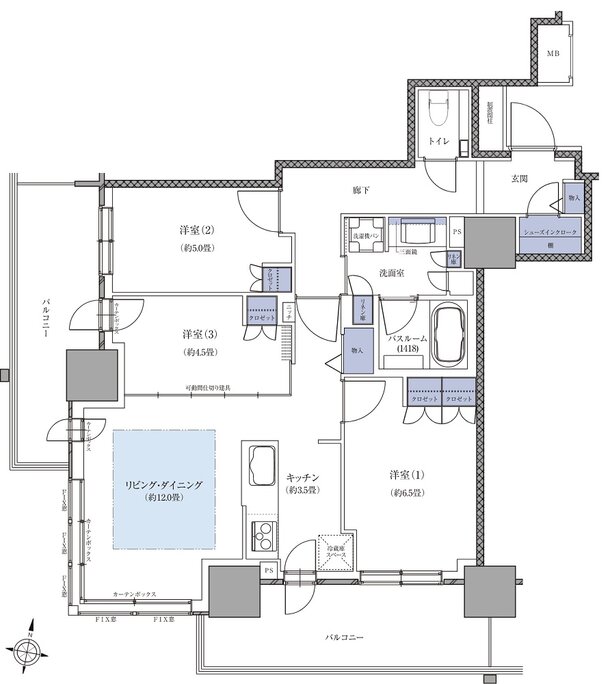
2LDK, 3LDK, 4LDK
間取りを見る(12件)
- 販売スケジュール
-
先着順受付中

