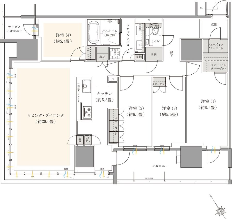
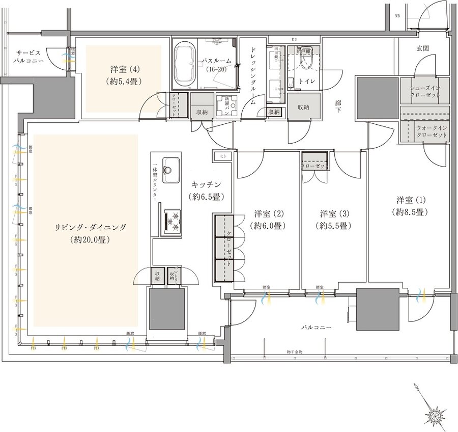
間取り
この物件の詳細情報に戻る2LDK掲載2件
3LDK掲載5件
WIC:ウォークインクローゼット、SIC:シューズインクローゼット
※掲載の間取り図面・設備仕様は開発段階のもので、設計・施工上の都合により変更する場合があります。
※方位記号は若干誤差があります。正確な方位については設計図書でご確認ください。
関連する他の物件も見てみる
特徴
- 出入口が2か所以上あるキッチン(6)
- モデルルーム公開中(6)
- I型キッチン(6)
- 対面キッチン(6)
- 子どもと暮らす(6)
- 防災設備(5)
- 平置き駐車場(5)
- 複数沿線利用可能(5)
- ウォークインクローゼット(5)
- 一人暮らし・二人暮らし向け(5)
- ペット可(4)
- ハンズフリーキー(4)
- 浴室暖房換気乾燥機(4)
- 宅配ボックス(4)
- 二重床/二重天井(4)
- 南西向き(3)
- ZEHマンション(3)
- 床暖房(3)
- 24時間ゴミ出し可能(3)
- 食器洗い乾燥機(食洗機)(3)
- 2面バルコニー(3)
- 広いリビング(3)
- 東向き(2)
- 即入居可能(2)
- ラウンジ(2)
- 南東向き(2)
- ゲストルーム(2)
- 玄関からリビングが見えない間取り(2)
- 一括受電サービス(2)
- シューズインクローゼット(1)
- 高級マンション・ハイグレードマンション(1)
- コンシェルジュサービス(1)
- 天井カセット型エアコン(1)
- タワーマンション・高層マンション(1)
- 電気自動車対応(1)
- 北向き(1)
- 大規模マンション(1)
- 24時間有人管理(1)
- IoTマンション(1)
地域
間取り
価格帯
不動産会社
駅
沿線

