間取り
この物件の詳細情報に戻る2LDK掲載5件
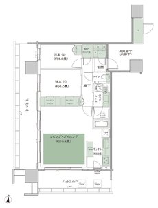
N:納戸 WIC:ウォークインクロゼット SIC:シューズインクロゼット 2WIC:2ウォークインクロゼット
※掲載の図面は、施工上の都合・改良等により多少変更する場合があります。あらかじめご了承ください。
※掲載の図面は本タイプの基本図面です。階数・列により間取りが一部異なる場合があります。詳細は図面集をご確認ください。
関連する他の物件も見てみる
特徴
- 子どもと暮らす(168)
- 対面キッチン(166)
- I型キッチン(165)
- ウォークインクローゼット(163)
- 一人暮らし・二人暮らし向け(156)
- 床暖房(148)
- 玄関からリビングが見えない間取り(132)
- 可変式間仕切り(125)
- シューズインクローゼット(123)
- 食器洗い乾燥機(食洗機)(112)
- 宅配ボックス(106)
- 浴室暖房換気乾燥機(98)
- 高級マンション・ハイグレードマンション(94)
- 2面バルコニー(93)
- 複層ガラス(ペアガラス)(91)
- モデルルーム公開中(89)
- 南向き(88)
- ハンズフリーキー(87)
- ペット可(83)
- 24時間ゴミ出し可能(82)
- 駅近(駅徒歩5分以内・駅直結)(76)
- 防災設備(71)
- 東向き(70)
- ディスポーザー(69)
- エコマンション(69)
- 大規模マンション(64)
- 二重床/二重天井(60)
- 内廊下(58)
- 出入口が2か所以上あるキッチン(56)
- ペット共用施設(51)
- 省エネ対応(51)
- 電気自動車対応(48)
- アウトフレーム工法(41)
- ミストサウナ(37)
- 耐震・免震・制振(33)
- 北向き(32)
- 広いリビング(32)
- バリアフリー(31)
- パーティールーム(29)
- タワーマンション・高層マンション(27)
- フラット35(26)
- 太陽光発電(23)
- ゲストルーム(23)
- ハイサッシ(22)
- キッズルーム(21)
- トランクルーム(19)
- カスタマイズ/プランセレクト可能(18)
- IoTマンション(18)
- コンシェルジュサービス(16)
- フィットネスルーム(プール含む)(13)
- 24時間有人管理(11)
- ワイドスパン(10)
地域
間取り
価格帯
不動産会社
駅
沿線

