- 価格
-
9900万円~1億3900万円
月々の支払い額を見る
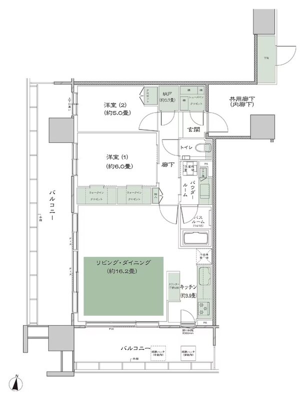
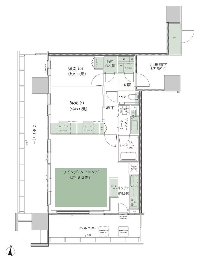
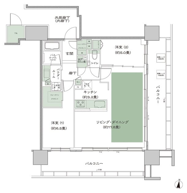
- 専有面積
-
61.1㎡~74.18㎡
- 間取り
-
2LDK~3LDK
間取りを見る(7件)
- 販売スケジュール
-
先着順受付

