- 価格
-
2億4000万円~3億9000万円
月々の支払い額を見る
- 専有面積
-
60.1㎡~75.13㎡
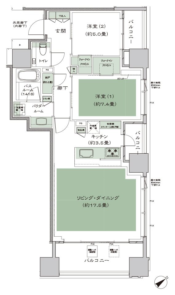
- 間取り
-
2LDK
間取りを見る(6件)
- 販売スケジュール
-
先着順受付中

