- 価格
-
7100万円~2億3000万円
月々の支払い額を見る
- 専有面積
-
40.81㎡~87.72㎡
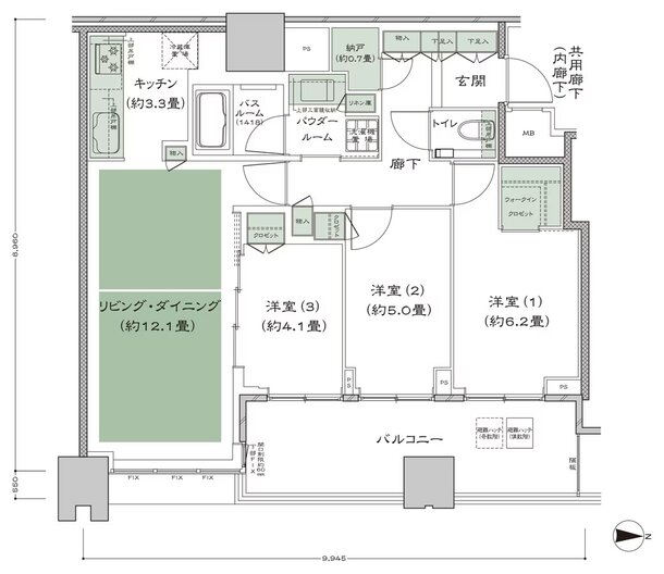
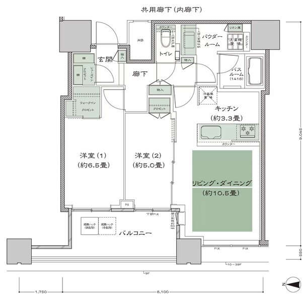
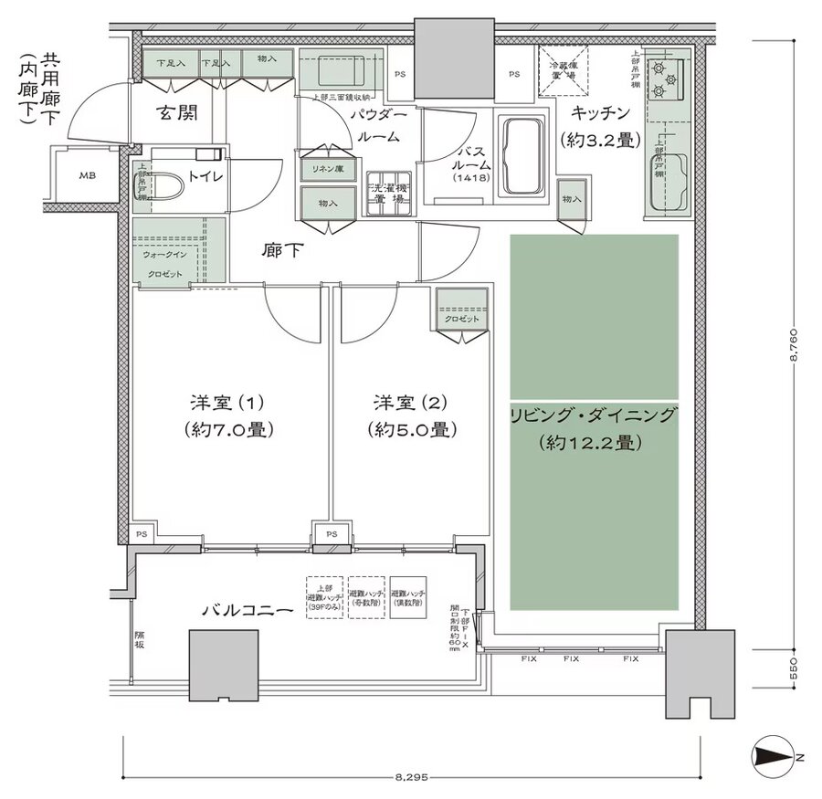
- 間取り
-
1LDK~3LDK
間取りを見る(19件)
- 販売スケジュール
-
先着順受付

