- 価格
-
7100万円~2億3000万円
月々の支払い額を見る
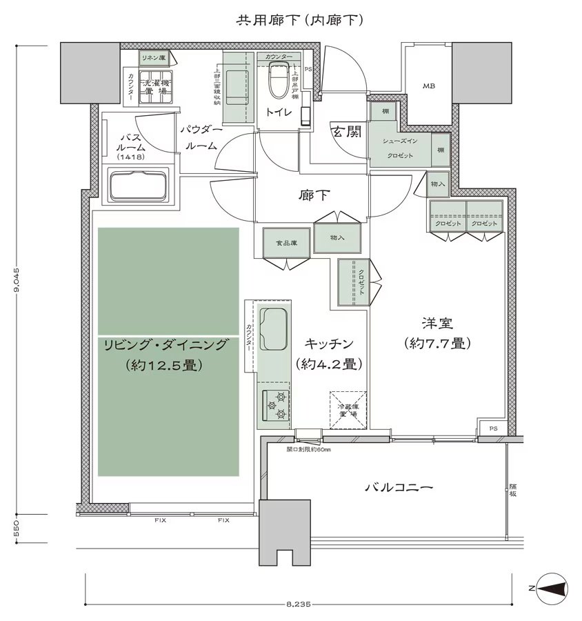
- 専有面積
-
41.04㎡~87.72㎡
- 間取り
-
1LDK~3LDK
間取りを見る(24件)
- 販売スケジュール
-
先着順受付

