- 価格
-
9200万円~1億3600万円
月々の支払い額を見る
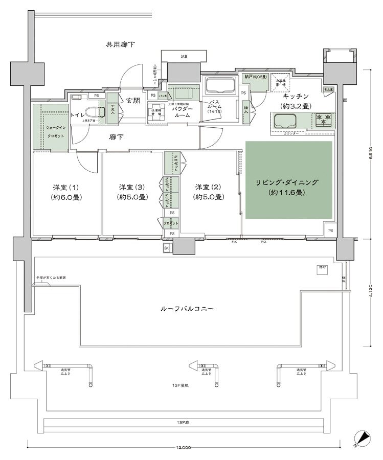
- 専有面積
-
67.37㎡~72.62㎡
- 間取り
-
1LDK+2S~3LDK
間取りを見る(7件)
- 販売スケジュール
-
先着順申込受付中

