- 価格
-
7500万円~3億6500万円
月々の支払い額を見る
- 専有面積
-
39.67㎡~118.85㎡
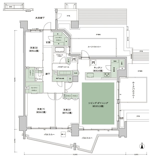
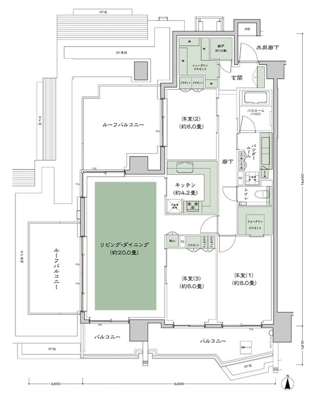
- 間取り
-
1DK~3LDK
間取りを見る(6件)
- 販売スケジュール
-
先着順受付中

