間取り
この物件の詳細情報に戻る2LDK掲載8件
3LDK掲載6件
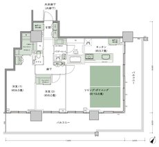
N:納戸 WIC:ウォークインクロゼット SIC:シューズインクロゼット 2N:2納戸 2WIC:2ウォークインクロゼット
※掲載の図面は、施工上の都合・改良等により多少変更する場合があります。あらかじめご了承ください。
※掲載の図面は本タイプの基本図面です。階数・列により間取りが一部異なる場合があります。詳細は図面集をご確認ください。
関連する他の物件も見てみる
特徴
- 子どもと暮らす(73)
- 対面キッチン(70)
- I型キッチン(70)
- ウォークインクローゼット(63)
- 一人暮らし・二人暮らし向け(58)
- 複数沿線利用可能(50)
- 平置き駐車場(48)
- 可変式間仕切り(47)
- モデルルーム公開中(43)
- 南向き(41)
- 玄関からリビングが見えない間取り(38)
- 床暖房(37)
- シューズインクローゼット(37)
- 食器洗い乾燥機(食洗機)(35)
- 宅配ボックス(35)
- 2面バルコニー(31)
- 浴室暖房換気乾燥機(29)
- ハンズフリーキー(26)
- 広いリビング(26)
- 防災設備(24)
- 出入口が2か所以上あるキッチン(23)
- ペット可(22)
- 複層ガラス(ペアガラス)(22)
- 大規模マンション(20)
- 南西向き(20)
- エコマンション(19)
- 高級マンション・ハイグレードマンション(19)
- 電気自動車対応(18)
- L字バルコニー(16)
- ペット共用施設(16)
- 東向き(16)
- 南東向き(15)
- ディスポーザー(14)
- ラウンジ(13)
- アウトフレーム工法(9)
- バリアフリー(9)
- 24時間ゴミ出し可能(8)
- 内廊下(7)
- タワーマンション・高層マンション(7)
- ゲストルーム(6)
- 南西向き中心(5)
- カスタマイズ/プランセレクト可能(5)
- 広いバルコニー(5)
- オール電化(4)
- 耐震・免震・制振(4)
- テレワーク・在宅勤務におすすめ(3)
- パーティールーム(3)
- IHクッキングヒーター(2)
- フィットネスルーム(プール含む)(2)
- ハイサッシ(2)
- 24時間有人管理(2)
地域
間取り
価格帯
不動産会社
駅
沿線

