- 価格
-
5400万円~1億6500万円
月々の支払い額を見る
- 専有面積
-
54.66㎡~89.89㎡
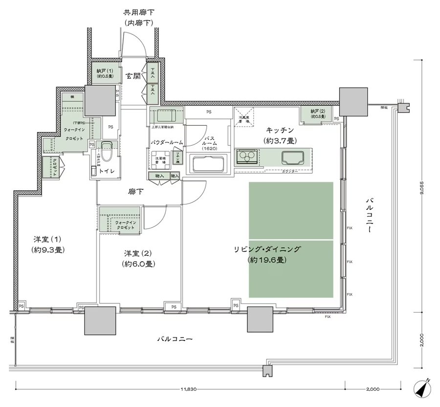
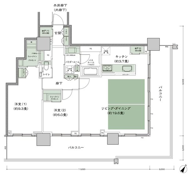
- 間取り
-
2LDK~3LDK
間取りを見る(14件)
- 販売スケジュール
-
先着順受付中

