- 価格
-
6300万円~1億7000万円
月々の支払い額を見る
- 専有面積
-
37.27㎡~70.63㎡
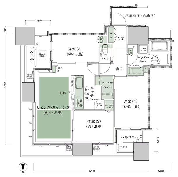
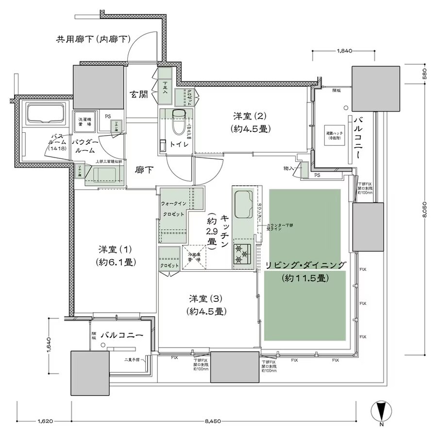
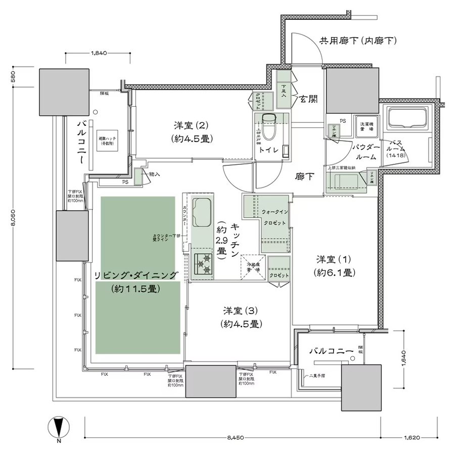
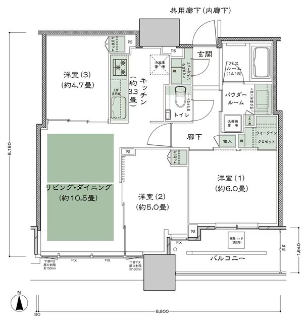
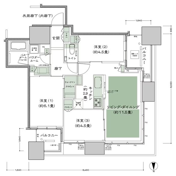
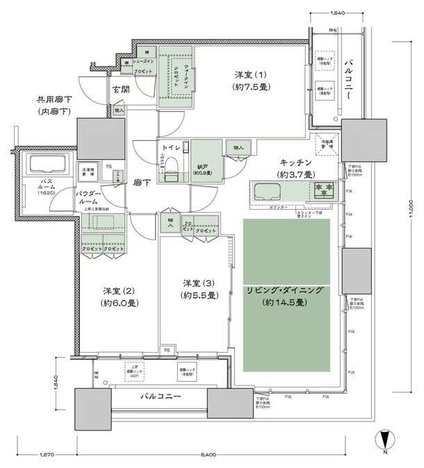
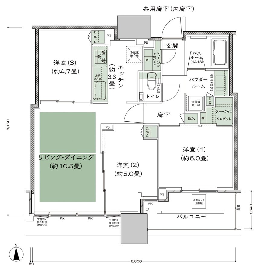
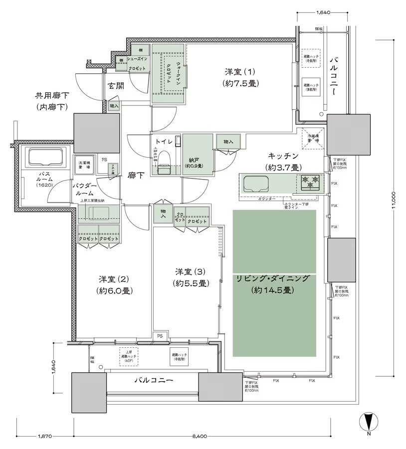
- 間取り
-
1LDK~3LDK
間取りを見る(14件)
- 販売スケジュール
-
先着順受付

