ザ・レーベン仙台定禅寺通 CAPITAL GATE TOWERの間取り一覧

お気に入りに
追加する
お気に入りに
追加済み

〜1LDK(1R・1K・1DK含む)掲載1

2LDK掲載1

3LDK掲載2

WIC=ウォークインクロゼット SIC=シューズインクロゼット
※掲載の間取図は計画段階の図面を基に描き起こしたものであり今後変更になる可能性があります。代表の間取りを掲載しています。マリオン、バルコニー形状等は階数により異なります。

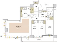
ザ・レーベン仙台定禅寺通 CAPITAL GATE TOWER 間取り F type
タイプ

F type

間取り

1LDK+WIC+SIC

専有面積

47.44㎡

バルコニー面積

9.44㎡

  • 玄関からリビングが見えない間取り
  • ウォークインクローゼット
  • シューズインクローゼット
  • 西向き
ザ・レーベン仙台定禅寺通 CAPITAL GATE TOWER 間取り M type
タイプ

M type

間取り

2LDK+WIC

専有面積

57.80㎡

バルコニー面積

12.60㎡

  • 玄関からリビングが見えない間取り
  • ウォークインクローゼット
  • 西向き
ザ・レーベン仙台定禅寺通 CAPITAL GATE TOWER 間取り Q type
タイプ

Q type

間取り

3LDK+SIC+サンルーム

専有面積

79.02㎡

バルコニー面積

9.72㎡

  • 玄関からリビングが見えない間取り
  • シューズインクローゼット
  • 出入口が2か所以上あるキッチン
  • 2面バルコニー
  • 東向き
ザ・レーベン仙台定禅寺通 CAPITAL GATE TOWER 間取り U type
タイプ

U type

間取り

3LDK+WIC+SIC

専有面積

106.33㎡

バルコニー面積

14.00㎡

  • 玄関からリビングが見えない間取り
  • 広いリビング
  • ウォークインクローゼット
  • シューズインクローゼット
  • 東向き

このページの一番上へ