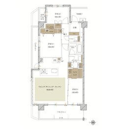
間取り
この物件の詳細情報に戻るT=テラス R=ルーフバルコニー BW=ビッグウォークインクロゼット W=ウォークインクロゼット SC=シューズインクロゼット
※掲載の間取りは、計画段階の図面を基に簡略化して描き起こしたものです。施工上の理由等のため、今後変更になる場合がございます。
※リビング・ダイニングの畳数表記については、リビング・ダイニングの扉より内側の面積からキッチンの面積を差し引いたもので算出しております。
関連する他の物件も見てみる
特徴
- 対面キッチン(75)
- ウォークインクローゼット(74)
- 子どもと暮らす(74)
- I型キッチン(72)
- 可変式間仕切り(70)
- 一人暮らし・二人暮らし向け(57)
- 複数沿線利用可能(54)
- 宅配ボックス(51)
- 販売前・販売予定(46)
- ペット可(45)
- 24時間ゴミ出し可能(44)
- シューズインクローゼット(44)
- 玄関からリビングが見えない間取り(44)
- ハンズフリーキー(40)
- 西向き(34)
- 南向き(33)
- 2面バルコニー(32)
- 東向き(26)
- ペット共用施設(23)
- テラス(19)
- ルーフバルコニー(16)
- 出入口が2か所以上あるキッチン(14)
- ミストサウナ(14)
- 広いリビング(13)
- L字バルコニー(10)
- オープンキッチン(4)
- 丘の上・高台(3)
地域
間取り
不動産会社
駅
沿線

