- 価格
-
価格未定(予定)
- 専有面積
-
55.67㎡~114.71㎡
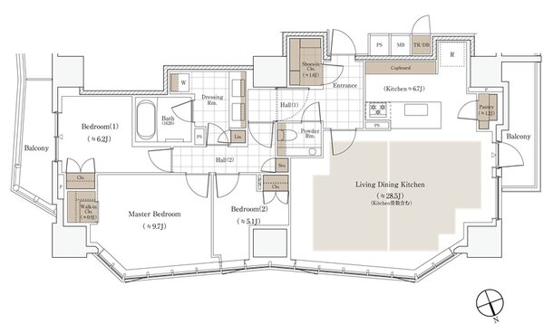
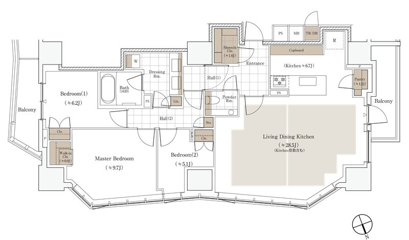
- 間取り
-
2LDK~3LDK
間取りを見る(2件)
- 販売スケジュール
-
2026年7月中旬販売予定

