アルファステイツ太宰府五条の間取り一覧

お気に入りに
追加する
お気に入りに
追加済み

2LDK掲載2

3LDK掲載5

4LDK掲載1

※行政官庁の指導または施工上の都合により、設計・設備・仕様・色調等の変更がある場合がございます。予めご了承ください。

アルファステイツ太宰府五条 間取り E type
タイプ

E type

間取り

2LDK+ウォークスルークロゼット

専有面積

63.36㎡

バルコニー面積

9.43㎡

備考

アルコーブ面積:2.20㎡

  • アルコーブ
  • スロップシンク
  • 西向き
アルファステイツ太宰府五条 間取り G type
タイプ

G type

間取り

2LDK+ウォークインクロゼット

専有面積

63.29㎡

バルコニー面積

10.37㎡

備考

アルコーブ面積:1.47㎡

  • アルコーブ
  • ウォークインクローゼット
  • スロップシンク
  • 西向き
アルファステイツ太宰府五条 間取り A type
タイプ

A type

間取り

3LDK+ウォークインクロゼット

専有面積

80.31㎡

バルコニー面積

16.94㎡

備考

アルコーブ面積:2.40㎡

  • アルコーブ
  • ウォークインクローゼット
  • 出入口が2か所以上あるキッチン
  • 浴室に窓
  • 2面バルコニー
  • L字バルコニー
  • スロップシンク
  • 西向き
アルファステイツ太宰府五条 間取り B type
タイプ

B type

間取り

3LDK+マルチクロゼット

専有面積

67.94㎡

バルコニー面積

9.47㎡

備考

アルコーブ面積:2.37㎡

  • アルコーブ
  • スロップシンク
  • 西向き
アルファステイツ太宰府五条 間取り C type
タイプ

C type

間取り

3LDK+ウォークインクロゼット×2

専有面積

67.39㎡

バルコニー面積

10.03㎡

備考

アルコーブ面積:2.37㎡

  • アルコーブ
  • ウォークインクローゼット
  • スロップシンク
  • 西向き
アルファステイツ太宰府五条 間取り D type
タイプ

D type

間取り

3LDK+ウォークインクロゼット

専有面積

67.39㎡

バルコニー面積

10.03㎡

備考

アルコーブ面積:2.37㎡

  • アルコーブ
  • ウォークインクローゼット
  • スロップシンク
  • 西向き
アルファステイツ太宰府五条 間取り F type
タイプ

F type

間取り

3LDK+マルチクロゼット

専有面積

67.39㎡

バルコニー面積

10.03㎡

備考

アルコーブ面積:2.37㎡

  • アルコーブ
  • スロップシンク
  • 西向き
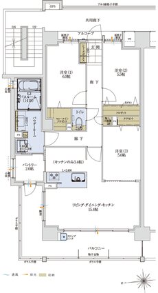
アルファステイツ太宰府五条 間取り H type
タイプ

H type

間取り

4LDK+マルチクロゼット+ウォークインクロゼット

専有面積

82.01㎡

バルコニー面積

20.10㎡

備考

アルコーブ面積:2.55㎡

  • アルコーブ
  • ウォークインクローゼット
  • 2面バルコニー
  • スロップシンク
  • 西向き

このページの一番上へ