- 価格
-
価格未定(予定)
- 専有面積
-
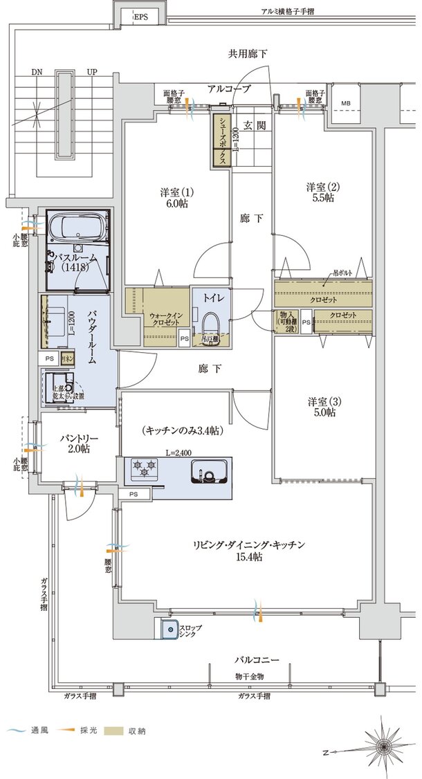
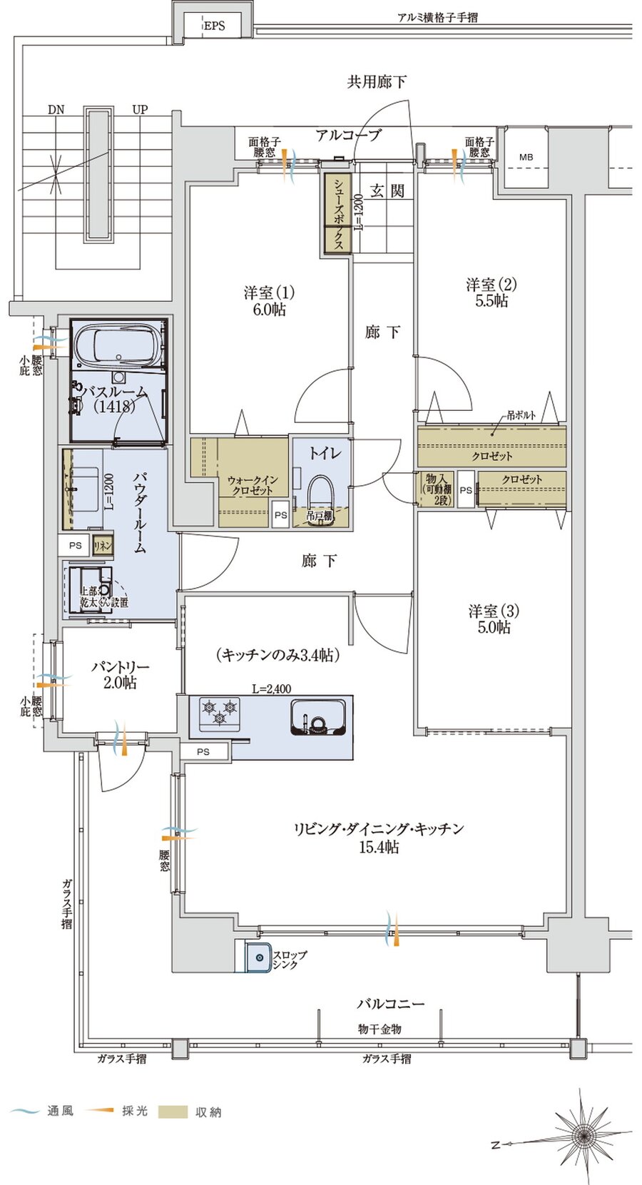
63.29㎡~82.01㎡
- 間取り
-
2LDK、3LDK、4LDK
間取りを見る(8件)
- 販売スケジュール
-
2026年7月中旬分譲開始予定

