シエリア京都烏丸五条の間取り一覧

お気に入りに
追加する
お気に入りに
追加済み

2LDK掲載2

WIC:ウォークインクロゼット SIC:シューズインクロゼット

※掲載の図面は計画段階のものであり、今後変更になる場合がございます。

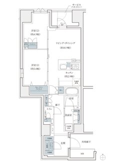
シエリア京都烏丸五条 間取り D TYPE
タイプ

D TYPE

間取り

2LDK+S+WIC+SIC

専有面積

70.01㎡

バルコニー面積

-

備考

サービスバルコニー面積:6.48㎡
※LDKの帖数には、リビング・ダイニング・キッチンの床面積をすべて含みます。キッチン(3.1帖)も含めた表記となっております。

  • 玄関からリビングが見えない間取り
  • 可変式間仕切り
  • 広いリビング
  • ウォークインクローゼット
  • シューズインクローゼット
  • 2面バルコニー
シエリア京都烏丸五条 間取り A TYPE
タイプ

A TYPE

間取り

2LDK+WIC+SIC

専有面積

57.13㎡

バルコニー面積

-

備考

サービスバルコニー面積:4.20㎡
※LDKの帖数には、リビング・ダイニング・キッチンの床面積をすべて含みます。キッチン(2.9帖)も含めた表記となっております。

  • 玄関からリビングが見えない間取り
  • ウォークインクローゼット

このページの一番上へ