- 価格
-
価格未定(予定)
- 専有面積
-
45.24㎡~70.01㎡
- 間取り
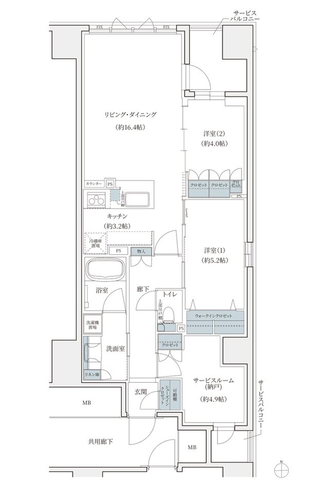
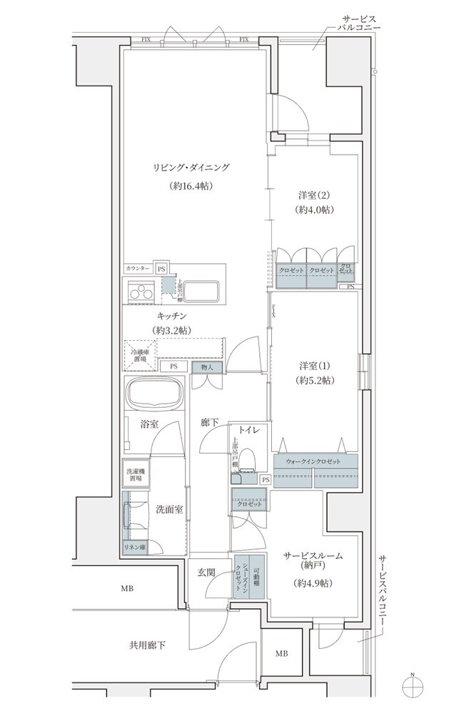
-
1LDK~2LDK+S
間取りを見る(2件)
- 販売スケジュール
-
2026年7月下旬 販売開始予定

