- 価格
-
価格未定(予定)
- 専有面積
-
54.44㎡~102.86㎡
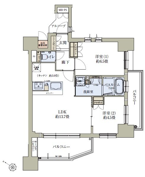
- 間取り
-
2LDK、3LDK
間取りを見る(3件)
- 販売スケジュール
-
販売予定時期:2026年4月上旬

