- 価格
-
価格未定(予定)
- 専有面積
-
60.42㎡~73.15㎡
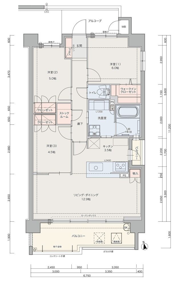
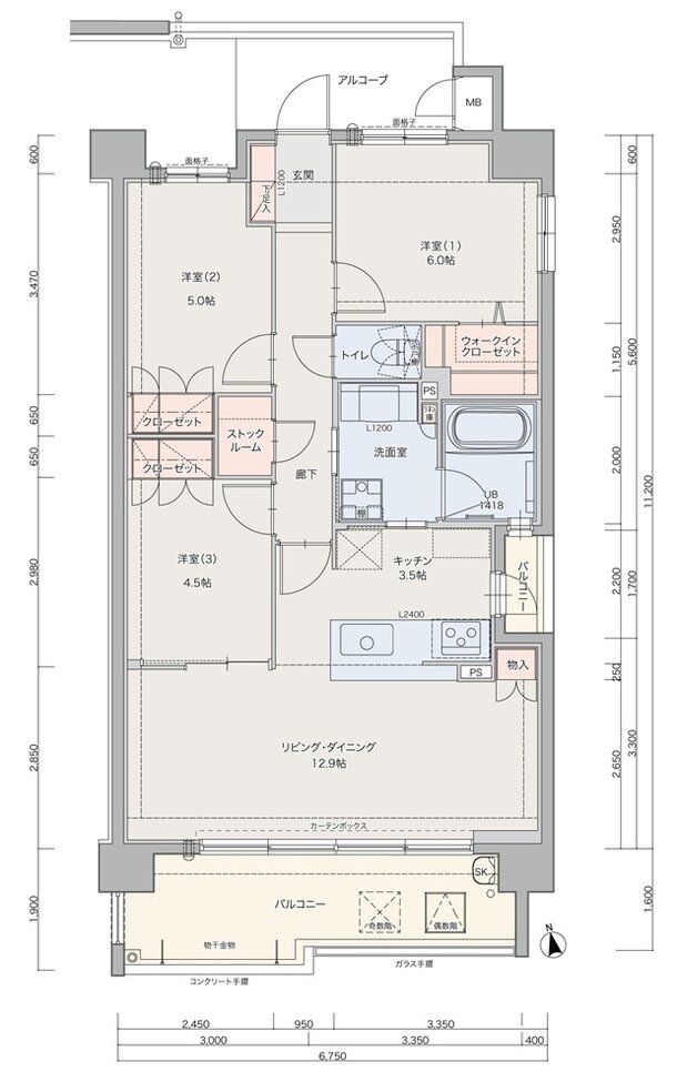
- 間取り
-
2LDK+S・3LDK
間取りを見る(1件)
- 販売スケジュール
-
予定販売時期/2026年2月上旬(予定)

