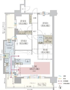
間取り
この物件の詳細情報に戻る3LDK掲載4件
※専有面積は壁芯表示により内法計算による登記計算とは多少相違します。
※専有面積についてはパイプスペースの面積を含みます。
※図面の縮尺及び方位には印刷工程上若干のずれが生じる場合があります。
※各タイプとも階によって柱・梁の太さ及び壁の厚さが相違する場合があります。
※坪数は㎡数に0.3025を乗じた数で小数点3桁以下を切り捨てて表示。
※帖数は㎡数を1.62で除し小数点2桁以下を切り捨てて表示。
※図面に掲載の寸法単位はmm。
※図面集は設計段階の図面を基に書き起こしたもので、若干異なる場合があります。
※詳細につきましては設計図書で確認してください。
※行政官庁の指導、施工上の都合により内容に変更が生じることもございます。
※階数によってバルコニーの形状が一部異なります。
※掲載の図面は設計段階の図面を基に描き起こしたもので、実際とは多少異なる場合があります。
※設計は、若干の変更が生じる場合があります。
※図面上で表現している床暖房の範囲は、実際の施工範囲とは多少異なります。
※可動間仕切りを開放すれば、LDKと一体化したスペースとなります。
関連する他の物件も見てみる

