- 価格
-
価格未定(予定)
- 専有面積
-
60.07㎡~71.87㎡
- 間取り
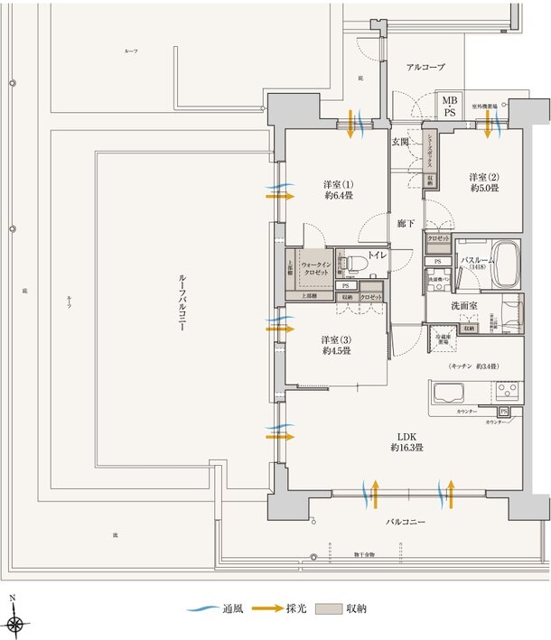
-
2LDK、3LDK
間取りを見る(7件)
- 販売スケジュール
-
販売予定時期:2025年4月中旬

