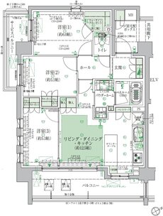
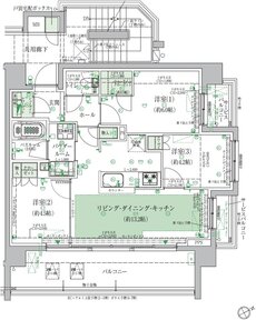
間取り
この物件の詳細情報に戻るWIC:ウォークインクローゼット
SIC:シューズインクローゼット
※掲載の間取図は計画段階の図面を基に描き起こしたものであり今後変更になる可能性があります。代表の間取りを掲載しています。マリオン、バルコニー形状等は階数により異なります。
関連する他の物件も見てみる
特徴
- 子どもと暮らす(64)
- ウォークインクローゼット(60)
- I型キッチン(59)
- 対面キッチン(59)
- 可変式間仕切り(56)
- 一人暮らし・二人暮らし向け(52)
- 複層ガラス(ペアガラス)(52)
- 平置き駐車場(48)
- 宅配ボックス(48)
- モデルルーム公開中(44)
- 床暖房(43)
- 販売前・販売予定(40)
- 複数沿線利用可能(37)
- 玄関からリビングが見えない間取り(32)
- 24時間ゴミ出し可能(32)
- ZEHマンション(32)
- アウトフレーム工法(26)
- 2面バルコニー(23)
- 駅近(駅徒歩5分以内・駅直結)(22)
- 出入口が2か所以上あるキッチン(21)
- 南東向き(17)
- 全戸南向き(16)
- 電気自動車対応(14)
- 南東向き中心(8)
地域
間取り
価格帯
不動産会社
駅
沿線

