グリーンヒル別府石垣東パークフロント 間取り A type(2~15階)
タイプ

A type(2~15階)

間取り

3LDK

専有面積

73.00㎡

バルコニー面積

13.14㎡

備考

室外機置場面積:3.06㎡

  • ウォークインクローゼット
  • 出入口が2か所以上あるキッチン
  • スロップシンク
  • 南向き
グリーンヒル別府石垣東パークフロント 間取り B type(2~15階)
タイプ

B type(2~15階)

間取り

3LDK

専有面積

69.50㎡

バルコニー面積

12.60㎡

  • ウォークインクローゼット
  • スロップシンク
  • 南向き
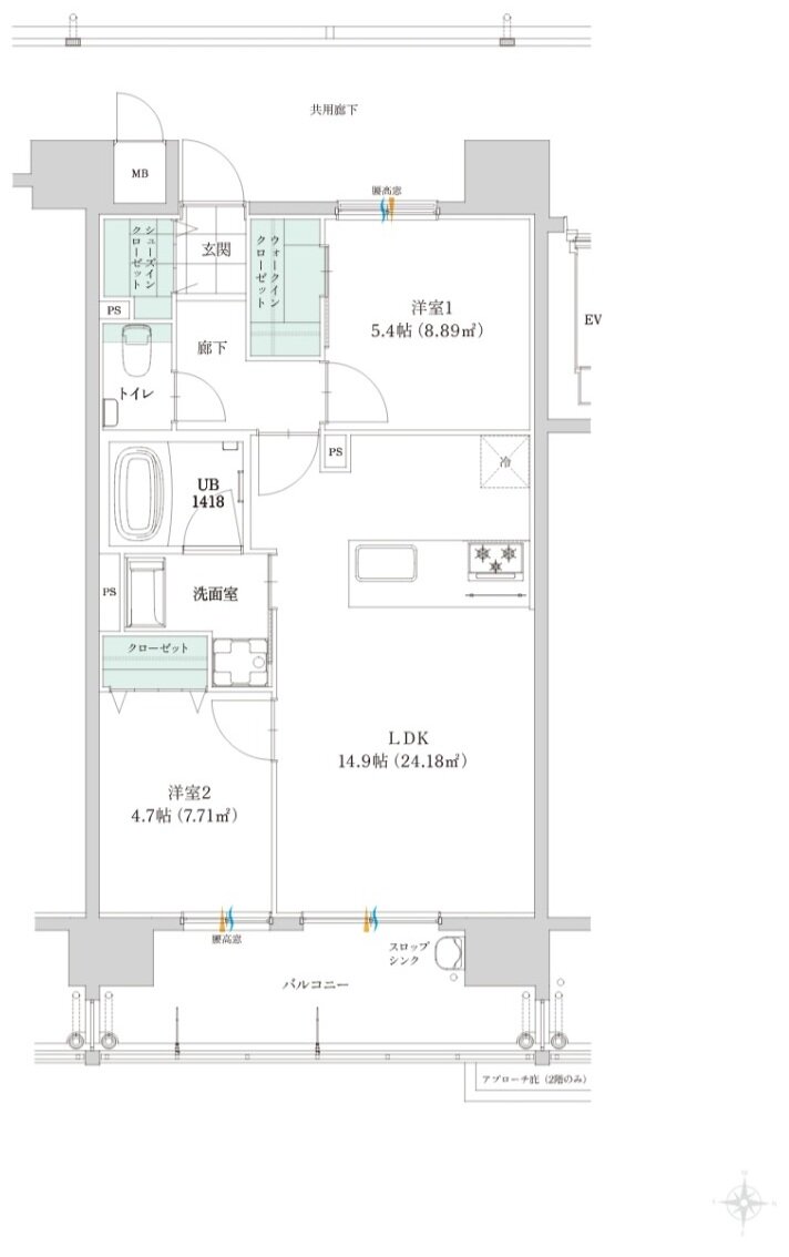
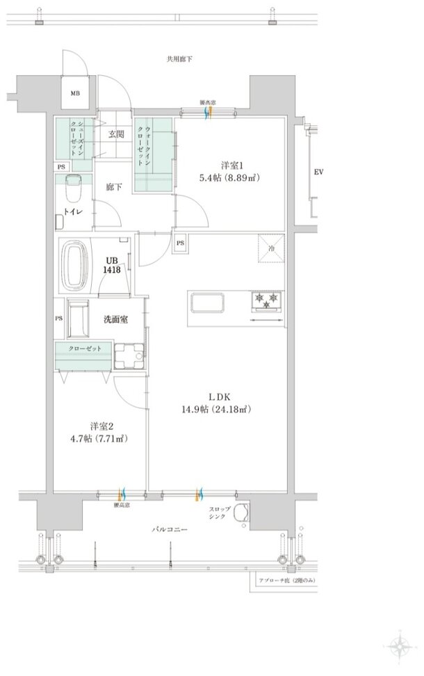
グリーンヒル別府石垣東パークフロント 間取り C type(2~15階)
タイプ

C type(2~15階)

間取り

2LDK

専有面積

58.23㎡

バルコニー面積

10.89㎡

  • ウォークインクローゼット
  • スロップシンク
  • 南向き
グリーンヒル別府石垣東パークフロント 間取り D type(2~15階)
タイプ

D type(2~15階)

間取り

3LDK

専有面積

71.01㎡

バルコニー面積

13.68㎡

備考

室外機置場面積:2.63㎡

  • ウォークインクローゼット
  • シューズインクローゼット
  • スロップシンク
  • 南向き

このページの一番上へ