- 価格
-
価格未定(予定)
- 専有面積
-
49.40㎡~157.12㎡
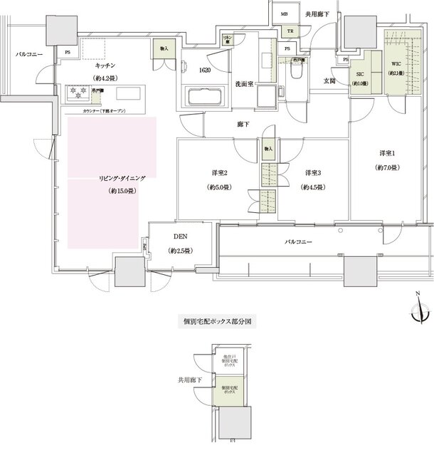
- 間取り
-
1LDK~4LDK
間取りを見る(4件)
- 販売スケジュール
-
2026年7月下旬販売開始予定

