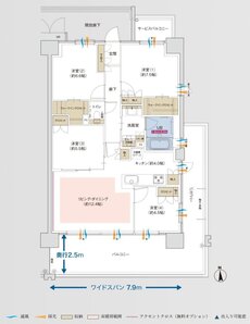
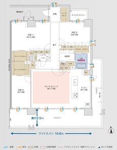
間取り
この物件の詳細情報に戻る3LDK掲載2件
※掲載の図面は計画段階のもので変更が生じる場合がございます。
※掲載のバルコニー奥行はメインバルコニーのものです。
※バルコニーの奥行は、壁の中心から手すり壁の中心までの寸法であり、実際に使用できる寸法とは異なります。
※バルコニーの形状は、階によって異なる場合があります。
※無償オプションには期限がございます。詳しくは係員にお尋ねください。
関連する他の物件も見てみる
特徴
- 一人暮らし・二人暮らし向け(3)
- 広いリビング(3)
- モデルルーム公開中(3)
- 複数沿線利用可能(3)
- I型キッチン(3)
- 対面キッチン(3)
- 玄関からリビングが見えない間取り(3)
- 子どもと暮らす(3)
- ウォークインクローゼット(3)
- L字バルコニー(3)
- 南向き(3)
- 浴室に窓(3)
- アイランドキッチン(2)
- ZEHマンション(2)
- 販売前・販売予定(2)
- 駐車場100%以上(2)
- シューズインクローゼット(2)
- 可変式間仕切り(2)
- 平置き駐車場(2)
- 出入口が2か所以上あるキッチン(2)
- 広いバルコニー(1)
- 3面バルコニー(1)
- 全戸南向き(1)
- オープンキッチン(1)
- 南向き中心(1)
- 床暖房(1)
- オンラインで相談・見学・商談可能(1)
地域
間取り
不動産会社
駅
沿線

