- 価格
-
価格未定(予定)
- 専有面積
-
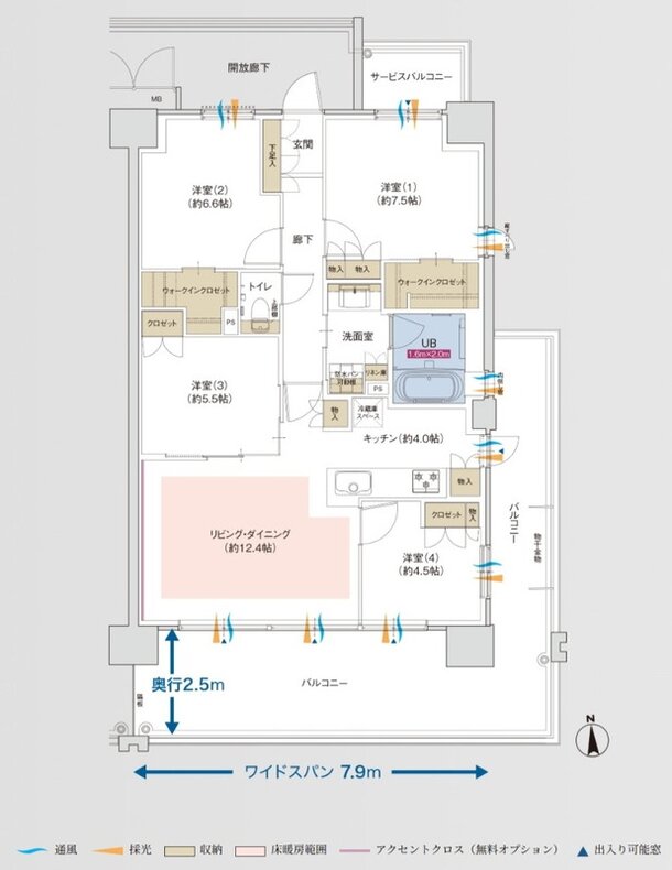
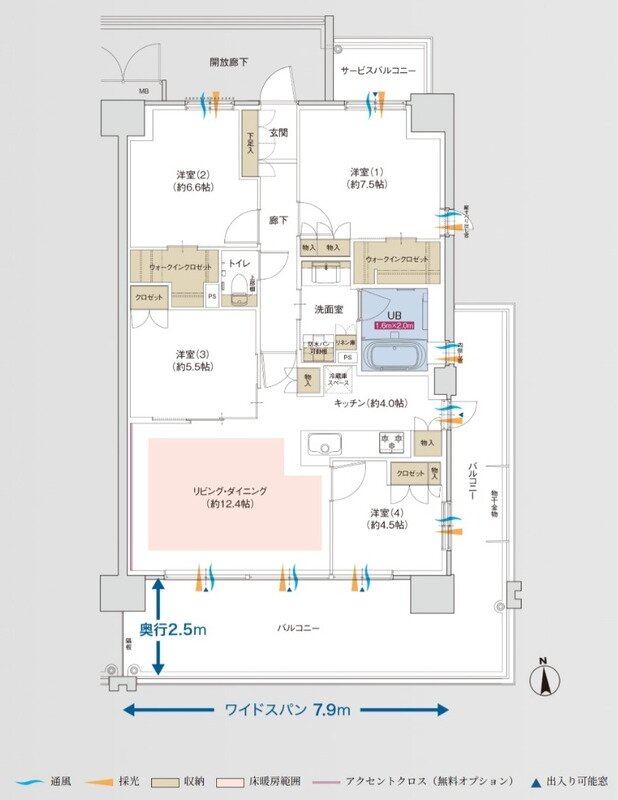
64.00㎡~127.22㎡
- 間取り
-
2LDK、3LDK、4LDK
間取りを見る(3件)
- 販売スケジュール
-
2026年3月中旬 販売開始予定

