- 価格
-
価格未定(予定)
- 専有面積
-
53.67㎡~75.38㎡
- 間取り
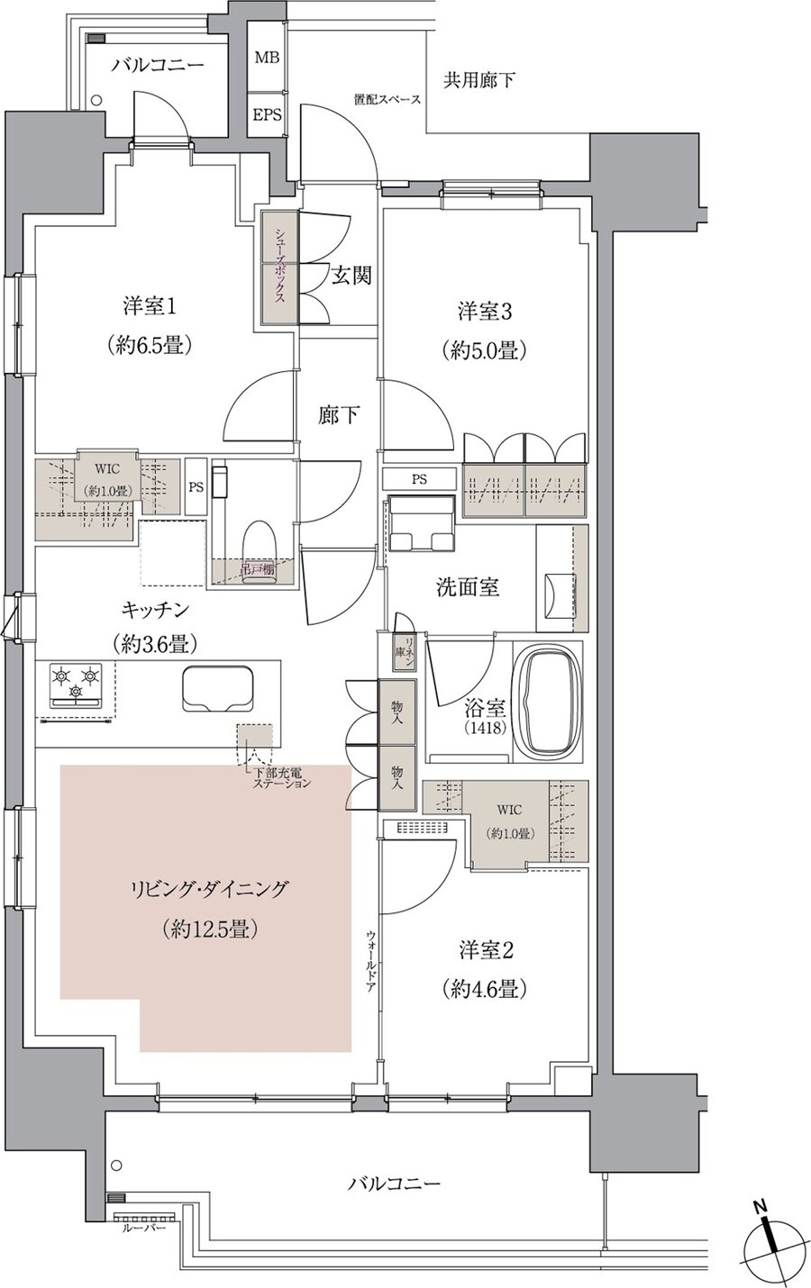
-
2LDK~3LDK
間取りを見る(4件)
- 販売スケジュール
-
2026年7月中旬販売開始予定

