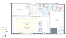
間取り
この物件の詳細情報に戻る3LDK掲載3件
WIC=ウォークインクローゼット
FCL=ファミリークローゼット
関連する他の物件も見てみる
特徴
- 子どもと暮らす(99)
- 対面キッチン(90)
- I型キッチン(90)
- ウォークインクローゼット(81)
- 食器洗い乾燥機(食洗機)(63)
- 二重床/二重天井(62)
- 一人暮らし・二人暮らし向け(62)
- ペット可(61)
- 可変式間仕切り(58)
- 宅配ボックス(55)
- 玄関からリビングが見えない間取り(54)
- 浴室に窓(46)
- ハンズフリーキー(45)
- ZEHマンション(44)
- ペット共用施設(38)
- 南向き(38)
- 駅近(駅徒歩5分以内・駅直結)(35)
- 電気自動車対応(27)
- 床暖房(25)
- 販売前・販売予定(22)
- フラット35(19)
- バリアフリー(16)
- 高級マンション・ハイグレードマンション(13)
- 内廊下(8)
- 遮音フローリング(8)
- カーシェア(7)
地域
間取り
価格帯
不動産会社
駅
沿線

