- 価格
-
価格未定(予定)
- 専有面積
-
68.07㎡~163.04㎡
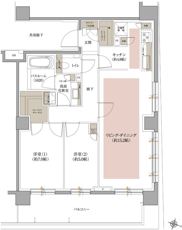
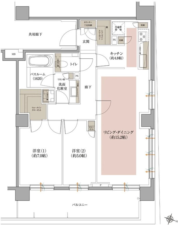
- 間取り
-
2LDK~3LDK
間取りを見る(6件)
- 販売スケジュール
-
2026年2月上旬 販売開始予定

