クレアホームズ岩崎ザ・リミテッド 間取り A type【BASIC PLAN】
タイプ

A type【BASIC PLAN】

間取り

3LDK

専有面積

72.54㎡

バルコニー面積

11.87㎡

備考

専有面積に防災倉庫面積:1.14㎡含む
ポーチ面積:5.19㎡
室外機置場面積:1.08㎡

  • ポーチ
  • 可変式間仕切り
  • ウォークインクローゼット
  • 浴室に窓
  • 南向き
  • フラットフロア
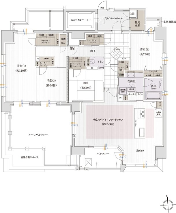
クレアホームズ岩崎ザ・リミテッド 間取り A type【MANU PLAN1】
タイプ

A type【MANU PLAN1】

間取り

3LDK

専有面積

72.54㎡

バルコニー面積

11.87㎡

備考

専有面積に防災倉庫面積:1.14㎡含む
ポーチ面積:5.19㎡
室外機置場面積:1.08㎡

  • ポーチ
  • 和室付き
  • ウォークインクローゼット
  • 浴室に窓
  • 南向き
  • フラットフロア
クレアホームズ岩崎ザ・リミテッド 間取り A type【MANU PLAN2】
タイプ

A type【MANU PLAN2】

間取り

2LDK

専有面積

72.54㎡

バルコニー面積

11.87㎡

  • ポーチ
  • ウォークインクローゼット
  • 浴室に窓
  • 南向き
  • フラットフロア
クレアホームズ岩崎ザ・リミテッド 間取り B type【BASIC PLAN】
タイプ

B type【BASIC PLAN】

間取り

3LDK

専有面積

85.17㎡

バルコニー面積

13.96㎡

備考

※専有面積に防災倉庫面積:2.22㎡含む
ポーチ面積:6.03㎡
室外機置場面積:1.68㎡

  • ポーチ
  • 玄関からリビングが見えない間取り
  • 可変式間仕切り
  • 広いリビング
  • ウォークインクローゼット
  • シューズインクローゼット
  • 浴室に窓
  • 南向き
  • フラットフロア
クレアホームズ岩崎ザ・リミテッド 間取り B type【MANU PLAN1】
タイプ

B type【MANU PLAN1】

間取り

3LDK

専有面積

85.17㎡

バルコニー面積

13.96㎡

備考

※専有面積に防災倉庫面積:2.22㎡含む
ポーチ面積:6.03㎡
室外機置場面積:1.68㎡

  • ポーチ
  • 玄関からリビングが見えない間取り
  • 和室付き
  • ウォークインクローゼット
  • シューズインクローゼット
  • 浴室に窓
  • 南向き
  • フラットフロア
クレアホームズ岩崎ザ・リミテッド 間取り B type【MANU PLAN2】
タイプ

B type【MANU PLAN2】

間取り

4LDK

専有面積

85.17㎡

バルコニー面積

13.96㎡

備考

※専有面積に防災倉庫面積:2.22㎡含む
ポーチ面積:6.03㎡
室外機置場面積:1.68㎡

  • ポーチ
  • 玄関からリビングが見えない間取り
  • 和室付き
  • ウォークインクローゼット
  • シューズインクローゼット
  • 浴室に窓
  • 南向き
  • フラットフロア
クレアホームズ岩崎ザ・リミテッド 間取り C type【BASIC PLAN】
タイプ

C type【BASIC PLAN】

間取り

3LDK

専有面積

77.37㎡

バルコニー面積

6.19㎡

備考

※専有面積に防災倉庫面積:1.14㎡含む
ポーチ面積:5.19㎡
室外機置場面積:1.08㎡

  • ポーチ
  • 可変式間仕切り
  • ウォークインクローゼット
  • 浴室に窓
  • 南向き
  • フラットフロア
クレアホームズ岩崎ザ・リミテッド 間取り C type【MANU PLAN1】
タイプ

C type【MANU PLAN1】

間取り

3LDK

専有面積

77.37㎡

バルコニー面積

6.19㎡

備考

※専有面積に防災倉庫面積:1.14㎡含む
ポーチ面積:5.19㎡
室外機置場面積:1.08㎡

  • ポーチ
  • 和室付き
  • ウォークインクローゼット
  • 浴室に窓
  • 南向き
  • フラットフロア
クレアホームズ岩崎ザ・リミテッド 間取り D type【BASIC PLAN】
タイプ

D type【BASIC PLAN】

間取り

3LDK

専有面積

90.41㎡

バルコニー面積

7.52㎡

備考

※専有面積に防災倉庫面積:2.22㎡含む
ポーチ面積:6.03㎡
室外機置場面積:1.68㎡

  • ポーチ
  • 玄関からリビングが見えない間取り
  • 可変式間仕切り
  • 広いリビング
  • ウォークインクローゼット
  • シューズインクローゼット
  • 浴室に窓
  • 南向き
  • フラットフロア
クレアホームズ岩崎ザ・リミテッド 間取り D type【MANU PLAN1】
タイプ

D type【MANU PLAN1】

間取り

3LDK

専有面積

90.41㎡

バルコニー面積

7.52㎡

備考

※専有面積に防災倉庫面積:2.22㎡含む
ポーチ面積:6.03㎡
室外機置場面積:1.68㎡

  • ポーチ
  • 玄関からリビングが見えない間取り
  • 和室付き
  • ウォークインクローゼット
  • シューズインクローゼット
  • 浴室に窓
  • 南向き
  • フラットフロア

このページの一番上へ