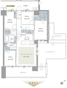
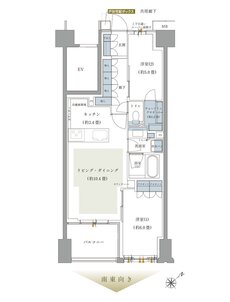
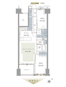
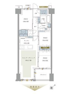
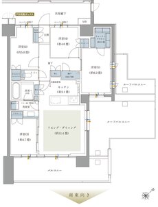
間取り
この物件の詳細情報に戻る3LDK掲載2件
UGOCLO S=ウゴクロS(可動収納ユニット) WIC=ウォークインクロゼット SIC=シューズインクロゼット
※面格子ルーバー:一部の住戸に限る
※掲載の図面は計画段階のものであり、変更となる場合がございます。予めご了承ください。
関連する他の物件も見てみる
特徴
- 対面キッチン(42)
- I型キッチン(42)
- 子どもと暮らす(41)
- ウォークインクローゼット(40)
- 床暖房(39)
- 可変式間仕切り(37)
- 一人暮らし・二人暮らし向け(35)
- 複数沿線利用可能(33)
- 食器洗い乾燥機(食洗機)(33)
- 宅配ボックス(32)
- 浴室暖房換気乾燥機(31)
- 複層ガラス(ペアガラス)(29)
- シューズインクローゼット(28)
- 防災設備(27)
- 販売前・販売予定(26)
- エコマンション(24)
- 2面バルコニー(20)
- ZEHマンション(17)
- 南東向き(14)
- ルーフバルコニー(13)
- 全戸南向き(9)
- 省エネ対応(5)
- IoTマンション(5)
- 南東向き中心(4)
地域
間取り
不動産会社
駅
沿線

