- 価格
-
4300万円台~6900万円台(100万円単位)(予定)
月々の支払い額を見る
- 専有面積
-
61.83㎡~81.88㎡
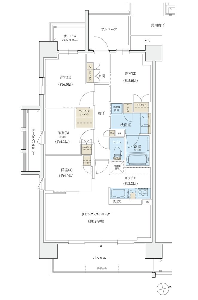
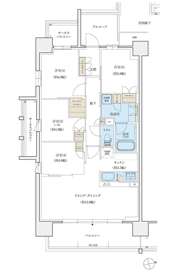
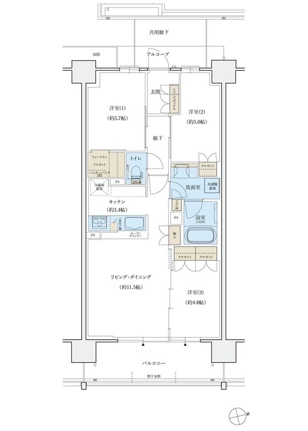
- 間取り
-
2LDK~4LDK
間取りを見る(4件)
- 販売スケジュール
-
2026年6月下旬 販売開始予定

