- 価格
-
価格未定(予定)
- 専有面積
-
61.83㎡~81.88㎡
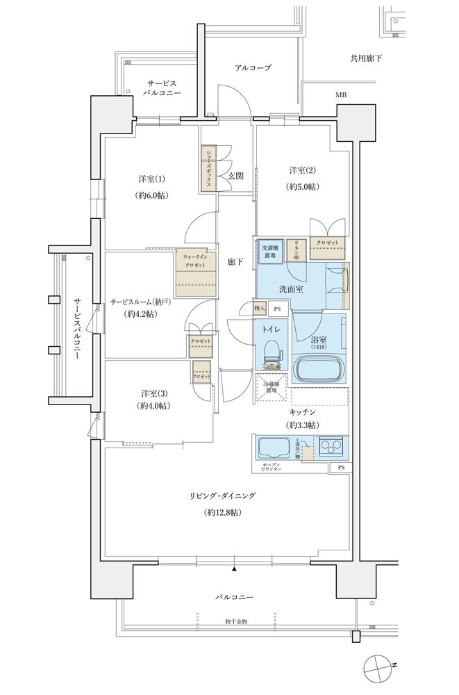
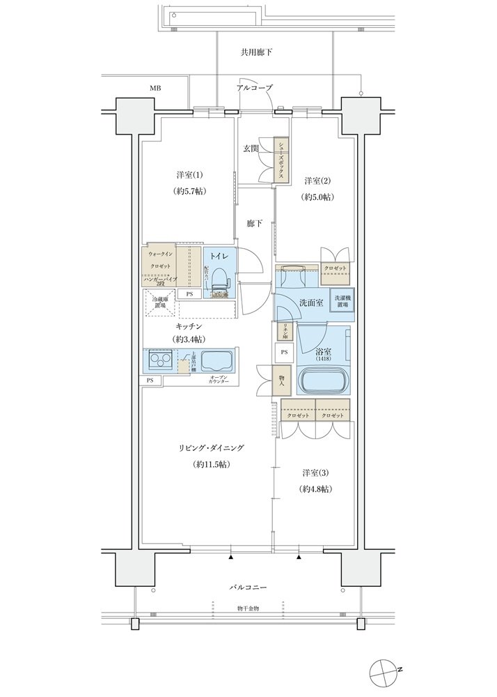
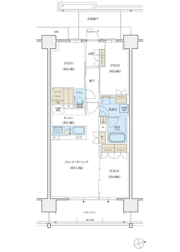
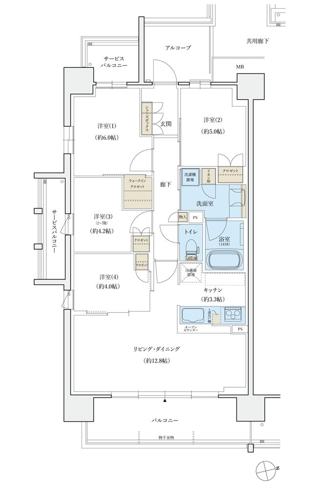
- 間取り
-
2LDK~4LDK
間取りを見る(3件)
- 販売スケジュール
-
2026年6月下旬 販売開始予定