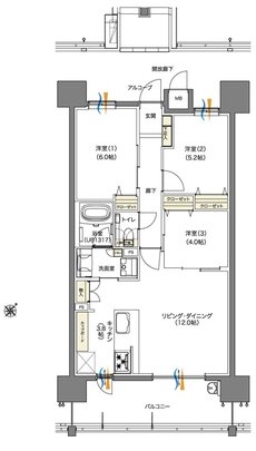
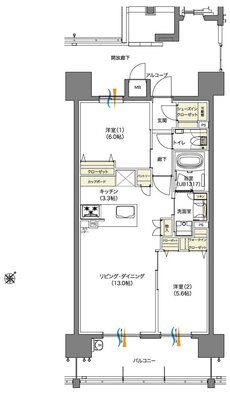
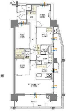
間取り
この物件の詳細情報に戻る3LDK掲載2件
※掲載の図面は施工上の理由及び改良のため、変更することがこざいます。
※各タイプ共、階によっては、柱・手摺・バルコニーの等状の若干異なります。
※生活空間面積とは、住居専有面積にMB、アルコープ、パルコニー室外機置場の面積を含めたものです。
関連する他の物件も見てみる
特徴
- 子どもと暮らす(39)
- 対面キッチン(38)
- ウォークインクローゼット(37)
- I型キッチン(37)
- スロップシンク(34)
- 浴室暖房換気乾燥機(32)
- 食器洗い乾燥機(食洗機)(31)
- 一人暮らし・二人暮らし向け(30)
- モデルルーム公開中(30)
- 平置き駐車場(29)
- 駐車場100%以上(24)
- ペット可(23)
- ハンズフリーキー(21)
- 2面バルコニー(20)
- 出入口が2か所以上あるキッチン(20)
- ペット共用施設(18)
- 浴室に窓(18)
- 可変式間仕切り(16)
- 玄関からリビングが見えない間取り(13)
- シューズインクローゼット(13)
- 南東向き(12)
- L字バルコニー(11)
- 複数沿線利用可能(10)
- アルコーブ(6)
地域
間取り
価格帯
不動産会社
駅
沿線

