MIRAI GREEN YARD 間取り Cタイプ【D棟】
タイプ

Cタイプ【D棟】

間取り

4LDK+WIC

専有面積

76.61㎡

バルコニー面積

13.24㎡

備考

【D棟】プレサンス ロジェ 京橋GREEN YARD Dear
アルコーブ面積:2.42㎡
※住居専有面積にはメーターボックス面積/1.93㎡含む

  • アルコーブ
  • 可変式間仕切り
  • ウォークインクローゼット
  • 南西向き
  • フラットフロア
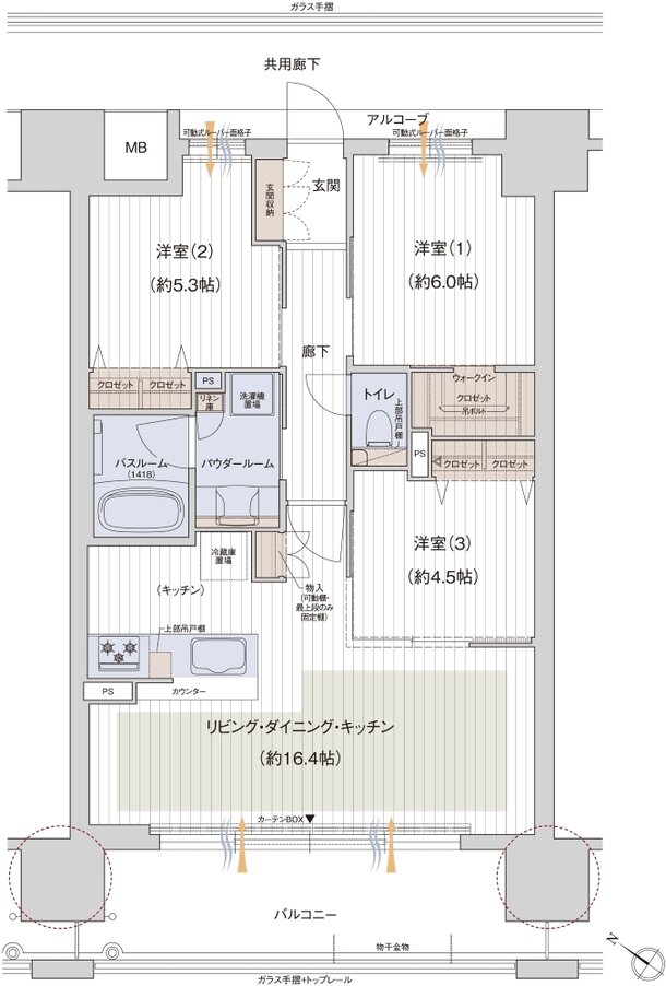
MIRAI GREEN YARD 間取り Eタイプ【D棟】
タイプ

Eタイプ【D棟】

間取り

3LDK+WIC

専有面積

70.49㎡

バルコニー面積

12.87㎡

備考

【D棟】
プレサンス ロジェ 京橋GREEN YARD Dear
アルコーブ面積:2.42㎡
※住居専有面積にはメーターボックス面積/1.33㎡含む

  • アルコーブ
  • 可変式間仕切り
  • ウォークインクローゼット
  • 南西向き
  • フラットフロア

このページの一番上へ