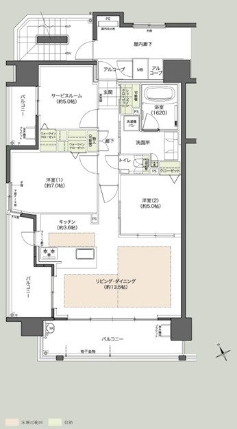
Theフローレンス比治山本町 間取り Aタイプ
タイプ

Aタイプ

間取り

3LDK+S+2WIC+SIC

専有面積

75.16㎡

バルコニー面積

23.69㎡

備考

アルコーブ面積:3.30㎡
MB面積:0.70㎡
※バルコニーの形状が階数により異なります、詳しくはパンフレットでご確認ください。

  • アルコーブ
  • 可変式間仕切り
  • ウォークインクローゼット
  • シューズインクローゼット
  • 出入口が2か所以上あるキッチン
  • 2面バルコニー
  • スロップシンク
  • 南西向き
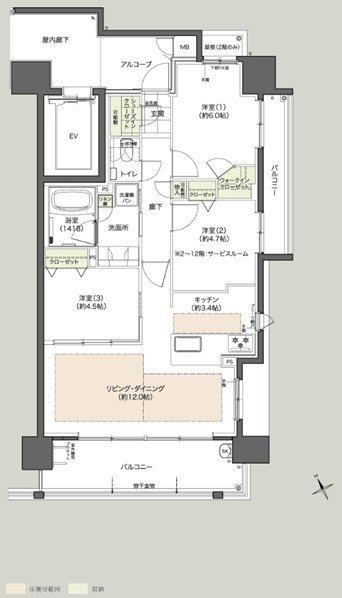
Theフローレンス比治山本町 間取り Bタイプ
タイプ

Bタイプ

間取り

3LDK+2WIC

専有面積

68.77㎡

バルコニー面積

22.98㎡

備考

アルコーブ面積:4.05㎡
MB面積:0.64㎡
※バルコニーの形状が階数により異なります、詳しくはパンフレットでご確認ください。

  • アルコーブ
  • 可変式間仕切り
  • ウォークインクローゼット
  • シューズインクローゼット
  • 2面バルコニー
  • スロップシンク
  • 南西向き
Theフローレンス比治山本町 間取り Cタイプ
タイプ

Cタイプ

間取り

3LDK+3WIC+SIC

専有面積

81.33㎡

バルコニー面積

17.99㎡

備考

アルコーブ面積:3.30㎡
MB面積:0.70㎡
※バルコニーの形状が階数により異なります、詳しくはパンフレットでご確認ください。

  • アルコーブ
  • 可変式間仕切り
  • ウォークインクローゼット
  • シューズインクローゼット
  • 出入口が2か所以上あるキッチン
  • 2面バルコニー
  • スロップシンク
  • 南西向き

このページの一番上へ