- 価格
-
価格未定(予定)
- 専有面積
-
67.20㎡~90.62㎡
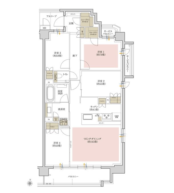
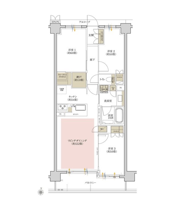
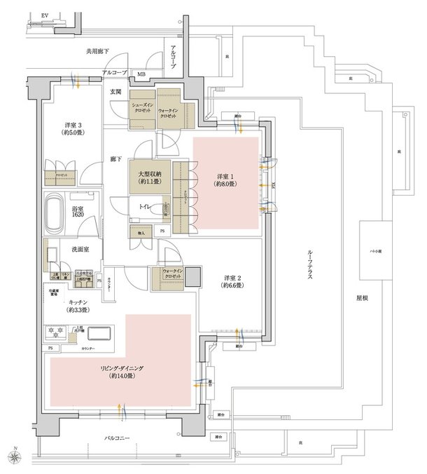
- 間取り
-
3LDK~4LDK
間取りを見る(3件)
- 販売スケジュール
-
2026年3月中旬 販売開始予定

