ワコーレJR三ノ宮駅直通9分プロジェクト 間取り A2 type
タイプ

A2 type

間取り

1LDK+S

専有面積

55.67㎡

バルコニー面積

10.35㎡

備考

アルコーブ面積:4.36㎡
MB・PS面積:0.48㎡

  • アルコーブ
  • ウォークインクローゼット
  • 南東向き
ワコーレJR三ノ宮駅直通9分プロジェクト 間取り B2 type
タイプ

B2 type

間取り

3LDK

専有面積

60.10㎡

バルコニー面積

10.98㎡

備考

アルコーブ面積:3.62㎡
MB・PS面積:0.48㎡

  • アルコーブ
  • 南東向き
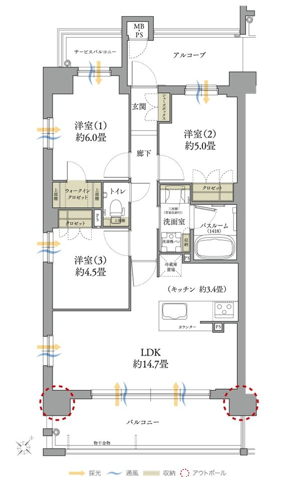
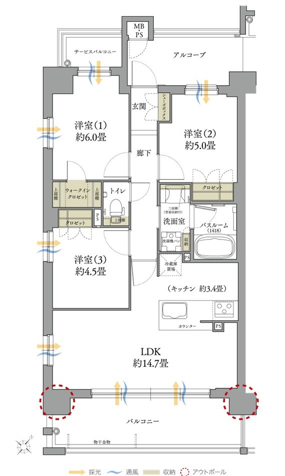
ワコーレJR三ノ宮駅直通9分プロジェクト 間取り D type
タイプ

D type

間取り

3LDK

専有面積

65.53㎡

バルコニー面積

11.34㎡

備考

サービスバルコニー面積:2.62㎡
アルコーブ面積:6.95㎡
MB・PS面積:0.51㎡

  • アルコーブ
  • ウォークインクローゼット
  • 南東向き

このページの一番上へ