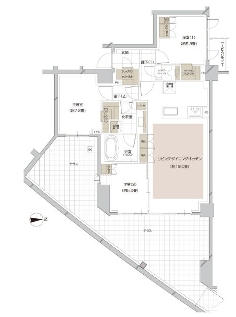
ピアース宮前平レジデンス 間取り R type[第1期3次]
タイプ

R type[第1期3次]

間取り

3LDK+WIC+SIC

専有面積

80.08㎡

バルコニー面積

19.00㎡

価格

価格未定

備考

ルーフバルコニー面積:28.99㎡

  • ウォークインクローゼット
  • シューズインクローゼット
  • 2面バルコニー
  • ルーフバルコニー
  • スロップシンク
  • 西向き
ピアース宮前平レジデンス 間取り F type[第1期3次]
タイプ

F type[第1期3次]

間取り

3LDK+2WIC+SIC

専有面積

71.86㎡

バルコニー面積

10.54㎡

価格

価格未定

  • 玄関からリビングが見えない間取り
  • 可変式間仕切り
  • ウォークインクローゼット
  • シューズインクローゼット
  • 西向き
ピアース宮前平レジデンス 間取り L type[第1期3次]
タイプ

L type[第1期3次]

間取り

2LDK+S+3WIC+SIC

専有面積

71.52㎡

バルコニー面積

10.2㎡

価格

価格未定

  • 玄関からリビングが見えない間取り
  • ウォークインクローゼット
  • シューズインクローゼット
  • 西向き
ピアース宮前平レジデンス 間取り J type[第1期3次]
タイプ

J type[第1期3次]

間取り

3LDK+WIC+SIC

専有面積

70.42㎡

バルコニー面積

13.04㎡

価格

価格未定

備考

サービスバルコニー面積/1.65㎡

  • 可変式間仕切り
  • ウォークインクローゼット
  • シューズインクローゼット
  • 東向き
ピアース宮前平レジデンス 間取り E type[第1期3次]
タイプ

E type[第1期3次]

間取り

2LDK+S+WIC

専有面積

65.50㎡

バルコニー面積

10.71㎡

価格

価格未定

  • 可変式間仕切り
  • ウォークインクローゼット
  • 西向き
ピアース宮前平レジデンス 間取り D type[第1期3次]
タイプ

D type[第1期3次]

間取り

2LDK+S+WIC

専有面積

65.37㎡

バルコニー面積

10.2㎡

価格

価格未定

  • ウォークインクローゼット
  • 西向き

このページの一番上へ