- 価格
-
価格未定(予定)
- 専有面積
-
55.25㎡~80.12㎡
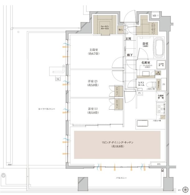
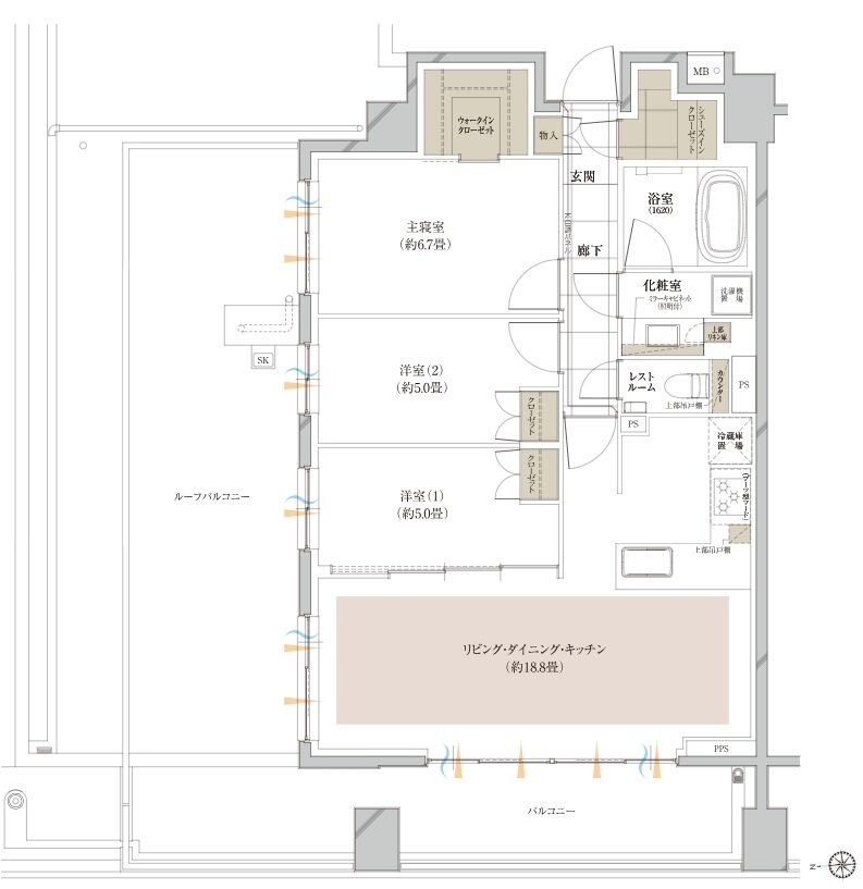
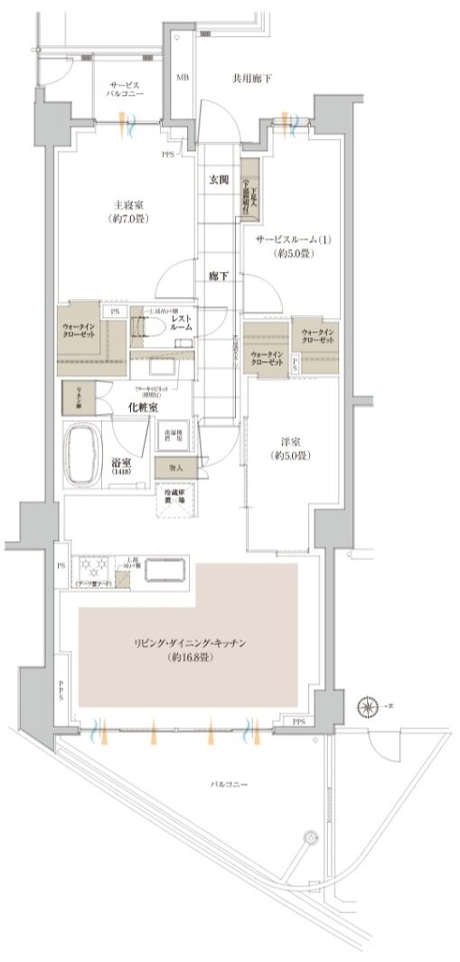
- 間取り
-
2LDK~3LDK
間取りを見る(7件)
- 販売スケジュール
-
〇販売予定時期:2026年1月下旬

