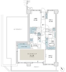
間取り
この物件の詳細情報に戻る※WIC:ウォークインクロゼット SIC:シューズインクロゼット N:納戸
※バルコニーの使用については管理規約等に従っていただきます。
※掲載の図面は設計段階の図面を基に描いたもので実際とは異なります。また施工上の理由及び改良等により変更となる場合がございます。
※住戸により仕様・形状が異なる場合がございます。
関連する他の物件も見てみる
特徴
- 子どもと暮らす(81)
- 対面キッチン(80)
- ウォークインクローゼット(78)
- I型キッチン(78)
- 可変式間仕切り(76)
- 床暖房(67)
- 一人暮らし・二人暮らし向け(62)
- シューズインクローゼット(57)
- 販売前・販売予定(53)
- 玄関からリビングが見えない間取り(49)
- 平置き駐車場(48)
- ZEHマンション(45)
- 24時間ゴミ出し可能(41)
- 2面バルコニー(30)
- 高級マンション・ハイグレードマンション(29)
- 南西向き(28)
- L型キッチン(14)
- ルーフバルコニー(14)
- 省エネ対応(12)
- 広いリビング(12)
- カーシェア(6)
地域
間取り
価格帯
不動産会社
駅
沿線

