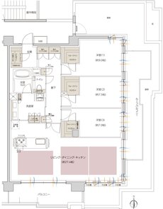
間取り
この物件の詳細情報に戻る3LDK掲載6件
WIC:ウォークインクロゼット WTC:ウォークスルークロゼット S:サービスルーム(納戸) N:納戸
※代表の間取りを掲載しています。※掲載の間取り図は、計画段階の図面を基に描き起こしたもので、今後変更になる場合がございます。
関連する他の物件も見てみる
特徴
- 子どもと暮らす(101)
- 対面キッチン(99)
- I型キッチン(97)
- ウォークインクローゼット(92)
- 一人暮らし・二人暮らし向け(90)
- 可変式間仕切り(79)
- 駅近(駅徒歩5分以内・駅直結)(75)
- 床暖房(67)
- シューズインクローゼット(64)
- モデルルーム公開中(61)
- 南向き(61)
- 食器洗い乾燥機(食洗機)(60)
- 複数沿線利用可能(59)
- 宅配ボックス(55)
- 販売前・販売予定(47)
- 玄関からリビングが見えない間取り(47)
- エコマンション(44)
- 東向き(39)
- 2面バルコニー(37)
- ハンズフリーキー(36)
- ペット可(36)
- 出入口が2か所以上あるキッチン(30)
- アウトフレーム工法(27)
- ラウンジ(25)
- ペット共用施設(23)
- ミストサウナ(20)
- 二重床/二重天井(18)
- バリアフリー(16)
- 南向き中心(13)
- アイランドキッチン(8)
- テラス(7)
- 専用庭(6)
- 浴室テレビ・オーディオ(5)
- 丘の上・高台(5)
- 天井高(2.6m以上)(4)
地域
間取り
不動産会社
駅
沿線

