- 価格
-
価格未定(予定)
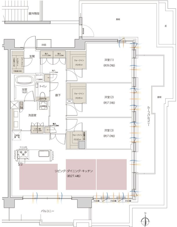
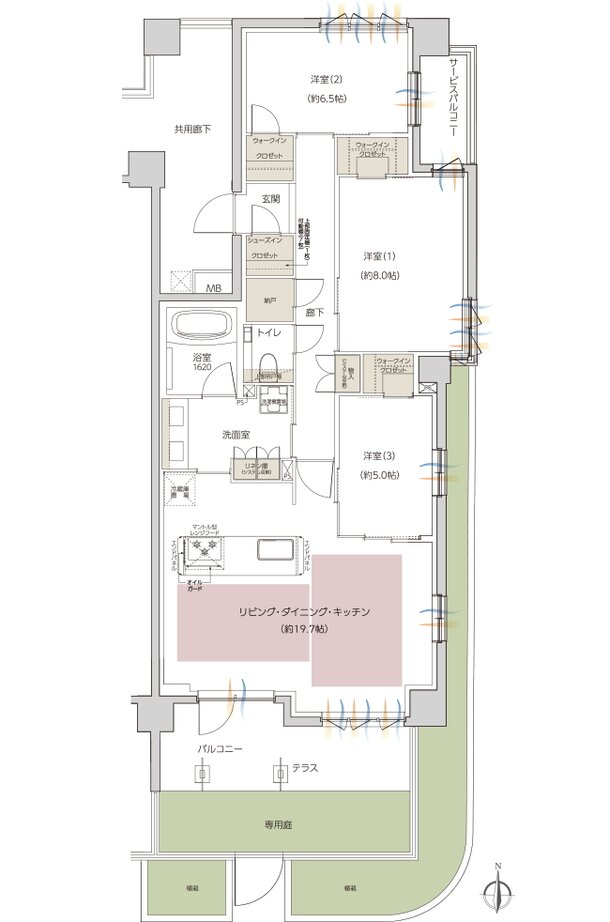
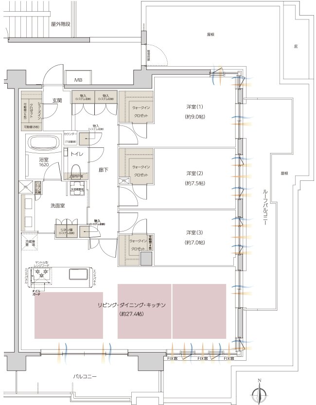
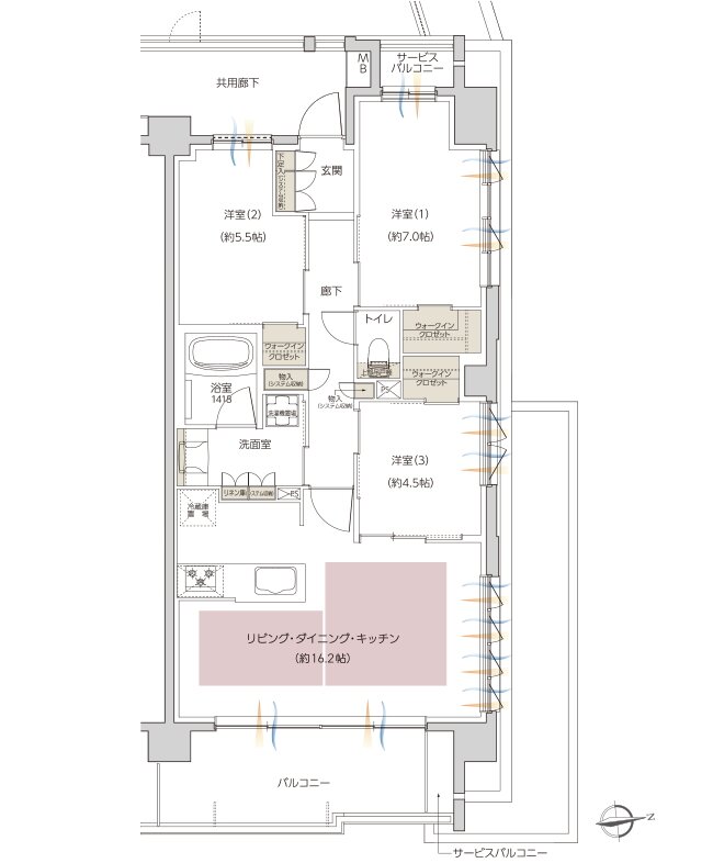
- 専有面積
-
66.32㎡~119.73㎡
- 間取り
-
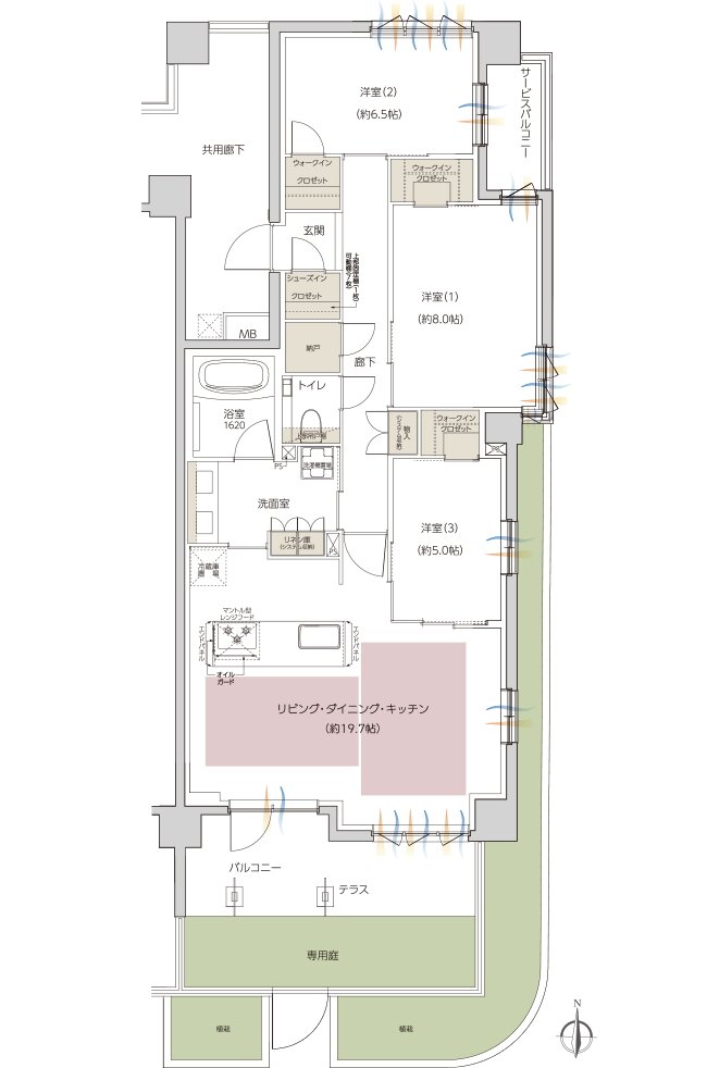
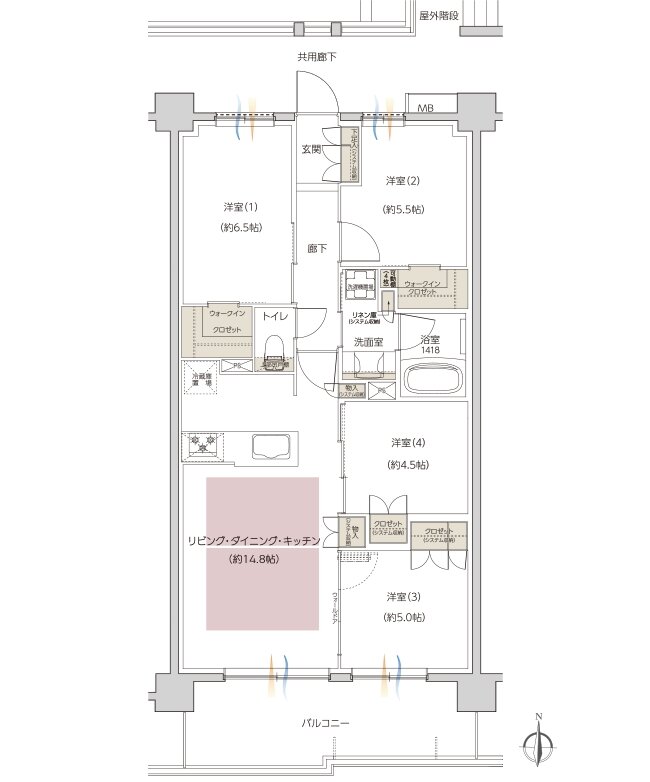
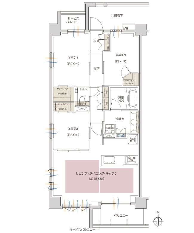
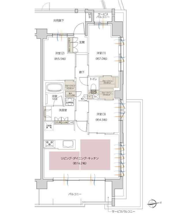
2LDK+S~4LDK
間取りを見る(12件)
- 販売スケジュール
-
2025年11月中旬販売開始予定

